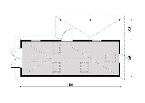
Dane techniczne
- powierzchnia
- 39.5 m²
- wysokość
- 4.54 m
- kąt dachu
- 36 °
- szerokość działki
- 6.3 m
- Powierzchnia zabudowy
- 44.71
- kondygnacje
- parterowe
- garaż
- bez garażu
- dach
- dach wielospadowy
- zabudowa
- domy wolnostojące
- piwnica
- bez piwnicy
- kubatura
- 192 m³
- dostępne odbicie lustrzane
- Nie
- Pow. użytkowa
- 39.5 m²
- długość działki
- 11.04 m
Opis projektu

Zobacz inne, podobne projekty