Informujemy, iż nasz sklep internetowy wykorzystuje technologię plików cookies a jednocześnie nie zbiera w sposób automatyczny żadnych informacji, z wyjątkiem informacji zawartych w tych plikach (tzw. „ciasteczkach”).

G256 budynek gospodarczy na zgłoszenie

  • Tylko online

Dane techniczne

powierzchnia
29.12 m²
wysokość
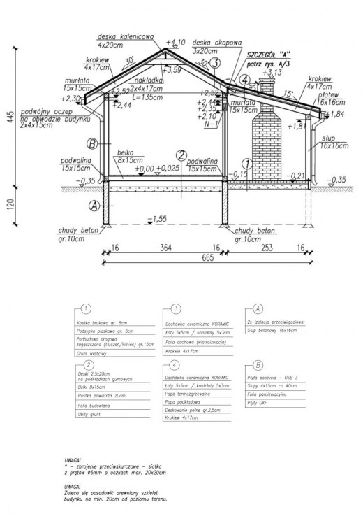
4.45 m
kąt dachu
30 °
szerokość działki
10.15 m
Liczba pokoi
1
Powierzchnia zabudowy
31.65
kondygnacje
parterowe
garaż
bez garażu
konstrukcja
murowane
zabudowa
domy wolnostojące
piwnica
bez piwnicy
kubatura
111 m³
dostępne odbicie lustrzane
Nie
Pow. użytkowa
29.12 m²
długość działki
10.76 m

Opis projektu

Budynek gospodarczy z werandą z grillem  bez bramy, wolnostojący, parterowy, niepodpiwniczony

Rzuty

Rzut przyziemia
1. pomieszczenie gosp.
16.32
2. weranda z grillem
12.8

Przekrój

O autorze projektu G256 budynek gospodarczy na zgłoszenie

699 zł

Tylko u nas możesz negocjować cenę!
Skorzystaj z tej możliwości.

Lustrzane odbicie: niedostępne.

Masz dodatkowe pytania?
Zadzwoń lub zamów rozmowę.

Zamów rozmowę

Pomożemy Ci dopasować do twoich potrzeb mymarzony projekt, wpisz swój numer telefonu nasz konsultant oddzwoni.

Negocjuj cenę projektu G256 budynek gospodarczy na zgłoszenie

Zapytaj pytanie o projekt G256 budynek gospodarczy na zgłoszenie

Oceny i komentarze

Napisz swoją opinię