Informujemy, iż nasz sklep internetowy wykorzystuje technologię plików cookies a jednocześnie nie zbiera w sposób automatyczny żadnych informacji, z wyjątkiem informacji zawartych w tych plikach (tzw. „ciasteczkach”).

MARMARIS dom letniskowy

  • Tylko online

Dane techniczne

powierzchnia
36.73 m²
wysokość
5.23 m
kąt dachu
30 °
szerokość działki
15 m
Liczba pokoi
5
Powierzchnia zabudowy
46.55
kondygnacje
parterowe
garaż
bez garażu
konstrukcja
murowane
zabudowa
domy wolnostojące
piwnica
bez piwnicy
kubatura
236 m³
dostępne odbicie lustrzane
Nie
Pow. użytkowa
36.73 m²
długość działki
14.65 m

Opis projektu

Rzuty

Parter
1 wiatrołap
2.28
2 komunikacja z garderobą
2.65
3 łazienka
4.31
4 sypialnia
8.2
5 pokój dzienny z aneksem kuchennym
19.29
6 weranda
10.18

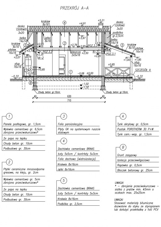
Przekrój

O autorze projektu MARMARIS dom letniskowy

2 499 zł

Tylko u nas możesz negocjować cenę!
Skorzystaj z tej możliwości.

Lustrzane odbicie: niedostępne.

Masz dodatkowe pytania?
Zadzwoń lub zamów rozmowę.

Zamów rozmowę

Pomożemy Ci dopasować do twoich potrzeb mymarzony projekt, wpisz swój numer telefonu nasz konsultant oddzwoni.

Negocjuj cenę projektu MARMARIS dom letniskowy

Zapytaj pytanie o projekt MARMARIS dom letniskowy

Oceny i komentarze

Napisz swoją opinię