- Tylko online
Masz pytania? Chciałbyś negocjować cenę
Zadzwoń! 577 575 011
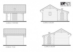
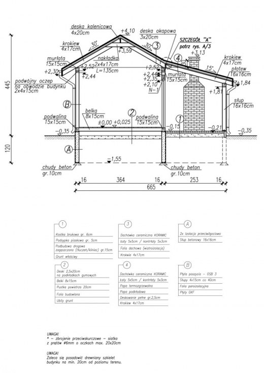
Budynek gospodarczy z werandą z grillem bez bramy, wolnostojący, parterowy, niepodpiwniczony
