- Tylko online
Masz pytania? Chciałbyś negocjować cenę
Zadzwoń! 577 575 011
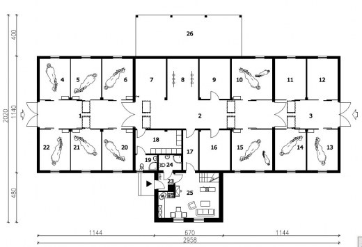
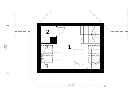
Ogromna stajnia dla osób pragnących zająć się profesjonalna hodowlą koni, którą będzie się rozwijać. W tym niesamowitym projekcie przewidziano także część mieszkalną. Sama stajnia została podzielona niejako na cztery części. Idąc szeroką komunikacją od lewej strony, miniemy sześć obszernych boksów (każdy o powierzchni 12m2), rozmieszonych przy północnej i południowej ścianie budynku. W środkowej części projektu przewidziano najwięcej różnorodnych pomieszczeń pomocniczych. Przy północnej ścianie budynku mamy myjnię dla koni, solarium oraz paszalnię. Po przeciwnej stronie natomiast, w częsci należącej do stajni, mamy przebieralnię z łazienką, siodlarnię oraz komunikację, prowadzącą do umieszczonej w uroczym wykuszu, częęci mieszkalnej, gdzie jest obszerna łazienka i pokój z aneksem kuchennym. Istnieje dodatkowe wejście przewidziane tylko i wyłącznie dla tej części budynku. Trzecia część stajni będzie służyła przede wszystkim rozwijaniu hodowli. Ustawiono tutaj naprzeciwko siebie dwa odrębne boksy dla klaczy, spełniające wszelkie wymogi przestrzenne potrzebne w takim wypadku, boks dla ogiera i wydzielono izolatkę. Oprócz tych pomieszczeń są jeszcze składy gospodarcze. Wszystkie pomieszczenia w budynku są połączone szeroką komunikacją poprowadzoną od wschodu ku zachodowi budynku. Jest to niezwykły projekt, wymagający sporych nakładów finansowych przeznaczony dla osób, które są zdecydowane zająć się profesjonalnie hodowlą koni i są gotowe zainwestować w to przedsięwzięcie duże nakłady finansowe. Może zyski okażą się wyższe, niż inwestycja? Może ten projekt umożliwi Ci realizację marzeń?Część mieszkalna, przebieralnia oraz siodlarnia ogrzewana. Czynnik grzewczy z wkładu kominkowego rozprowadzony jest do rozdzielacza i dalej do grzejników.Projekt stajni dla koni. Projekt stajni składa się z czterech egzemplarzy a w tym części architektonicznej, konstrukcyjnej, wewnętrznych instalacji wod.-kan i instalacji wewnętrznej elektrycznej. W projekcie załączone są podstawowe zestawienie stali, drewna i stolarki okienno-drzwiowej. Do projektu dołączamy bezpłatną zgodę na wprowadzenie zmian, oświadczenie projektantów o wykonaniu projektu zgodnie z obowiązującymi normami i przepisami oraz kserokopie uprawnień projektantów wraz z aktualnym wpisem do izby.Projekt posiada poddasze użytkowe (sypialnia z komunikacja i pom. gospodarcze) 14.34m2.Kochasz konie? Zapraszamy do serwisu ogłoszeniowego i forum http://allekonie.pl
