- Tylko online
Masz pytania? Chciałbyś negocjować cenę
Zadzwoń! 577 575 011
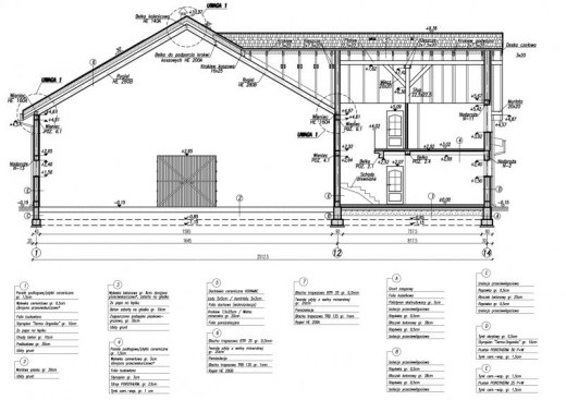
Stajnia na 13 boksów, z częścią mieszkalną, ujeżdżalnią . Ten blisko 1200 metrowy budynek stajni imponuje rozmachem z jakim został zaprojektowany. Duża ujeżdżalnia, czyli pomieszczenie przeznaczone do nauki jazdy konnej przez cztery pory roku. Można ją pokryć sypkim piaskiem. Ujeżdżalnia może służyć jako miejsce pokazów, konkursów i zawodów sportowych. Część mieszkalna oraz 13 boksów + 1 dla klaczy ze źrebięciem tworzy przemyślaną całość, zapewniającą zwierzętom, właścicielom i obsłudze odpowiednie warunki do pracy i opieki. Komunikacja na przestrzał wraz z częścią skierowaną na południowy-wschód umożliwia szybkie i bezpieczne prowadzenie hodowli. Zarówno sprzątanie boksów, jak i karmienie nie sprawiają większych trudności. Boksy o wymiarach niespełna 12 m2 są komfortowe, wyposażone w otwory okienne, zapewniające odpowiednią wentylację. Część mieszkalna usytuowana jest od południowo-zachodniej strony. Wiatrołap, kuchnia z aneksem-jadalnym i salon tworzą jedno pomieszczenie i to w nim usytuowane są schody wiodące na piętro. Dalej znajdziemy przedsionek, po lewej łazienkę zaś na wprost siodlarnię, z której można przejść do części stajennej i paszarni. Na piętrze części mieszkalnej znajdą Państwo dwie łazienki, trzy sypialnie oraz dwa pokoje.Projekt stajni dla koni. Projekt stajni składa się z czterech egzemplarzy a w tym części architektonicznej, konstrukcyjnej, wewnętrznych instalacji wod.-kan i instalacji wewnętrznej elektrycznej. W projekcie załączone są podstawowe zestawienie stali, drewna i stolarki okienno-drzwiowej. Do projektu dołączamy bezpłatną zgodę na wprowadzenie zmian, oświadczenie projektantów o wykonaniu projektu zgodnie z obowiązującymi normami i przepisami oraz kserokopie uprawnień projektantów wraz z aktualnym wpisem do izby.Możliwość zakupu alternatywnej konstrukcji dachu w postaci wiązarów (projekt, wykonawstwo i montaż). Zapraszamy do kontaktu +48 33 811 89 57 ; mobil : +48 512 119 101, dachy@agrobud.ig.agrobud.pl, konstruktor@agrobud.ig.pl ; www.agrobud.eu
