- Tylko online
Masz pytania? Chciałbyś negocjować cenę
Zadzwoń! 577 575 011
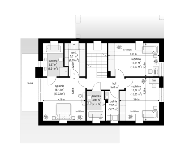
Projekt domu Fokstrot jest kolejną wersją projektu z kolekcji „roztańczonych” domów. Jest to kolejna odsłona popularnego projektu Party, ale w nowocześniejszym ujęciu - domu typu „stodoła”, bez okapów, z parterowymi dobudówkami, z płaskimi daszkami otaczającymi zasadniczą bryłę. Projekt domu Fokstrot jest propozycją dla Klientów lubiących nowoczesną architekturę i życie w takiej oprawie. Główna bryła domu to prostopadłościan przykryty dwuspadowym dachem. Z przodu dom urozmaica wystający garaż i zadaszenie wejścia. Od strony ogrodu natomiast podcień - zadaszenie tarasu. Bryła została podzielona poziomymi pasami. Dolny pas parteru wypełniono dużymi oknami do podłogi i szarymi płytami (z betonu architektonicznego, płyt włókowo-cementowych, lub z tynku o innym kolorze i strukturze imitującego płyty). W ścianach szczytowych poddasza zaprojektowano zestawy okien balkonowych połączonych kontrastującymi środkowymi słupkami. Pozostała cześć elewacji domu jest biała. Dach przykryto płaską grafitową dachówką. W dachu po obu stronach umieszczono rzędy okien połaciowych. Architektura domu jest nowoczesna, prosta, czysta. Budynek doskonale wpasuje się w dowolne otoczenie. Wnętrze : na parterze zaprojektowaliśmy jednoprzestrzenne wnętrze pomieszczeń salonu, kuchni i holu. Kuchnia z wyspą, ścianą w pełnej zabudowie, z pięknym przeszkleniem do podłogi i sąsiadującą spiżarnią będzie doskonałym miejscem do krótkich spotkań domowników. Salon ze ścianą kominkowo-telewizyjną otwiera się szerokimi przeszkleniami na otaczający ogród i częściowo zadaszony taras. Na parterze mamy też dodatkowy pokój, łazienkę z prysznicem i schowkiem porządkowym, dwustanowiskowy garaż i kotłownię. W projekcie domu Fokstrot na poddaszu zaprojektowano trzy sypialnie : apartament rodziców z własną łazienką i garderoba, oraz tarasem nad garażem, oraz dwie sypialnie dziecięce, z wbudowanymi szafami i oddzielną łazienką. Dodatkowo na poddaszu przewidziano też pralnię. Ścianki kolankowe na poddaszu są dość wysokie, więc skosy nie powinny być dużym utrudnieniem. Koszty i eksploatacja : dom ma bardzo prostą konstrukcję. Jego bryła to prostokąt przykryty dwuspadowym dachem. Budynek wg projektu domu Fokstrot będzie niedrogi w budowie, a dzięki energooszczędnym rozwiązaniom i „czystej” bryle - będzie również tani w późniejszej eksploatacji. Propozycja w sam raz dla współczesnej, dynamicznej rodziny, lubiącej nowoczesną architekturę. Zapraszamy do zapoznania się z całą serią "roztańczonych domów": https://www.mgprojekt.com.pl/makarena, https://www.mgprojekt.com.pl/bolero, https://www.mgprojekt.com.pl/lambada, https://www.mgprojekt.com.pl/party, https://www.mgprojekt.com.pl/party-2, https://www.mgprojekt.com.pl/biba, https://www.mgprojekt.com.pl/tango, https://www.mgprojekt.com.pl/salsa, https://www.mgprojekt.com.pl/rumba, https://www.mgprojekt.com.pl/mambo, https://www.mgprojekt.com.pl/samba.
