Informujemy, iż nasz sklep internetowy wykorzystuje technologię plików cookies a jednocześnie nie zbiera w sposób automatyczny żadnych informacji, z wyjątkiem informacji zawartych w tych plikach (tzw. „ciasteczkach”).

E-104

  • Tylko online

Dane techniczne

powierzchnia
156.37 m²
wysokość
8.78 m
kąt dachu
40 °
szerokość działki
23.01 m
Liczba pokoi
4
Powierzchnia zabudowy
149.9
kondygnacje
parterowe
garaż
z garażem 1 st.
dach
dach dwuspadowy
piwnica
bez piwnicy
kubatura
522.16 m³
dostępne odbicie lustrzane
Nie
Pow. użytkowa
156.37 m²
długość działki
21.06 m
Powierzchnia dachu
215 m²

Opis projektu

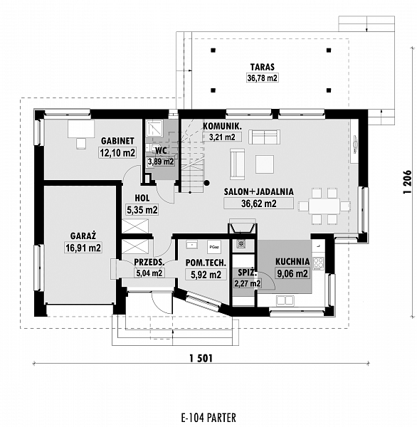
Projekt domu E-104 łączy tradycję z nowoczesnością. Prosta bryła, o ładnych proporcjach, została urozmaicona subtelnym detalem z drewna i klinkieru. Wejście do domu podkreśla skośna, uciekająca ściana na parterze oraz tradycyjna lukarna na poddaszu. Od strony ogrodu zaprojektowano duże zadaszenie nad tarasem. Na parterze zaplanowano duży salon z jadalnią. W centralnym miejscu umieszczono kominek. Z jadalnią graniczy półotwarta kuchnia ze spiżarnią. Na tym poziomie zaprojektowano także dodatkowy pokój z funkcjonalną łazienką. Na poddaszu (ścianka kolankowa h=1m) znajdują się trzy sypialnie oraz łazienka dla całej rodziny. Duża sypialnia posiada własną garderobę i łazienkę.

Rzuty

Rzut 1
Rzut 2

Elewacje

Sytuacja

O autorze projektu E-104

4 990 zł

Tylko u nas możesz negocjować cenę!
Skorzystaj z tej możliwości.

Lustrzane odbicie: niedostępne.

Masz dodatkowe pytania?
Zadzwoń lub zamów rozmowę.

Zamów rozmowę

Pomożemy Ci dopasować do twoich potrzeb mymarzony projekt, wpisz swój numer telefonu nasz konsultant oddzwoni.

Negocjuj cenę projektu E-104

Zapytaj pytanie o projekt E-104

Oceny i komentarze

Napisz swoją opinię