Informujemy, iż nasz sklep internetowy wykorzystuje technologię plików cookies a jednocześnie nie zbiera w sposób automatyczny żadnych informacji, z wyjątkiem informacji zawartych w tych plikach (tzw. „ciasteczkach”).

E-105

  • Tylko online

Dane techniczne

powierzchnia
144.13 m²
wysokość
8.1 m
kąt dachu
35 °
szerokość działki
21.3 m
Liczba pokoi
4
Powierzchnia zabudowy
148.13
kondygnacje
parterowe
garaż
z garażem 2 st.
dach
dach czterospadowy
piwnica
bez piwnicy
kubatura
542.37 m³
dostępne odbicie lustrzane
Nie
Pow. użytkowa
144.13 m²
długość działki
21.1 m
Powierzchnia dachu
230 m²

Opis projektu

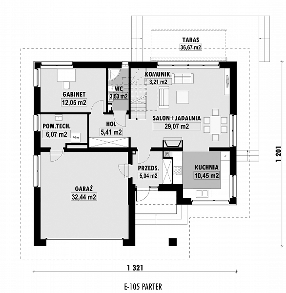
Projekt nowoczesnego domu z czterospadowym dachem i charakterystycznym podcieniem, podkreślającym wejście do domu. Dom E-105 łączy ładną, prostą bryłę z uniwersalnym układem funkcjonalnym. Dach bez lukarn, podkreśla nowoczesny charakter domu, a jednocześnie jest łatwy w budowie. Na parterze zaplanowano przestronny salon z jadalnią. W centralnym miejscu umieszczono kominek. Z jadalnią graniczy półotwarta kuchnia. Na poddaszu (ze ściankami kolankowymi wys. 100cm) znajdują się trzy sypialnie, w tym jedna główna z garderobą, schowkiem i osobną łazienką wyposażoną w prysznic i wannę. Dodatkowo na tym poziomie zaplanowano dużą garderobę i łazienkę dla całej rodziny oraz pralnię.

Rzuty

Rzut 1
Rzut 2

Elewacje

Sytuacja

O autorze projektu E-105

5 090 zł

Tylko u nas możesz negocjować cenę!
Skorzystaj z tej możliwości.

Lustrzane odbicie: niedostępne.

Masz dodatkowe pytania?
Zadzwoń lub zamów rozmowę.

Zamów rozmowę

Pomożemy Ci dopasować do twoich potrzeb mymarzony projekt, wpisz swój numer telefonu nasz konsultant oddzwoni.

Negocjuj cenę projektu E-105

Zapytaj pytanie o projekt E-105

Oceny i komentarze

Napisz swoją opinię