- Tylko online
Masz pytania? Chciałbyś negocjować cenę
Zadzwoń! 577 575 011
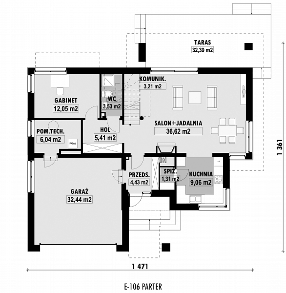
E-106 to projekt dużego, dwukondygnacyjnego domu, w stylu eleganckiej rezydencji. Do wykończenia użyto szlachetnych materiałów, takich jak kamień i drewno. Na parterze zaplanowano przestronny, dobrze doświetlony salon z jadalnią i wyjściem na zadaszony taras. W centralnym miejscu salonu umieszczono kominek, a w części bocznej atrakcyjne otwarte schody, powiększające optycznie przestrzeń. Z jadalnią graniczy półotwarta kuchnia ze spiżarnią. Na parterze zaplanowano też pokój gościnny z niewielkim WC z prysznicem, oraz część techniczną z garażem. Na piętrze znajdują się garderoba, duża łazienka oraz trzy sypialnie, z których dwie posiadają balkony.
