Informujemy, iż nasz sklep internetowy wykorzystuje technologię plików cookies a jednocześnie nie zbiera w sposób automatyczny żadnych informacji, z wyjątkiem informacji zawartych w tych plikach (tzw. „ciasteczkach”).

E-108

  • Tylko online

Dane techniczne

powierzchnia
168.77 m²
wysokość
8.14 m
kąt dachu
35 °
szerokość działki
23.01 m
Liczba pokoi
5
Powierzchnia zabudowy
161.38
kondygnacje
parterowe
garaż
z garażem 2 st.
dach
dach czterospadowy
piwnica
bez piwnicy
kubatura
607.76 m³
dostępne odbicie lustrzane
Nie
Pow. użytkowa
168.77 m²
długość działki
21.91 m
Powierzchnia dachu
240 m²

Opis projektu

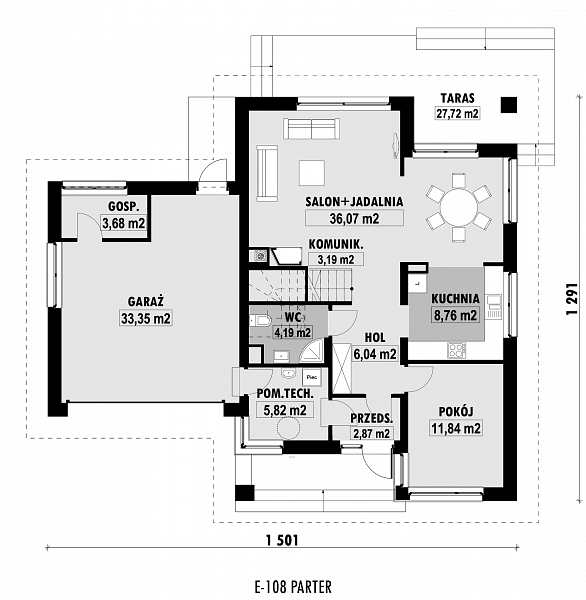
Projekt nowoczesnego domu z uniwersalnym układem funkcjonalnym, z dużym podcieniem wejściowym. Na parterze zaplanowano przestronny salon połączony przestrzennie z jadalnią. Z jadalni przechodzi się do kuchni. Przy wejściu do domu zaplanowano również dodatkowy pokój, który może być wykorzystywany, jako np. pracownia. Na poddaszu (ścianka kolankowa wysokości ok. 110cm) znajdują się trzy sypialnie, w tym jedna główna z garderobą i osobną łazienką, oraz duża łazienka dla reszty rodziny. Dodatkowo nad garażem, zaplanowano duże pomieszczenie rekreacyjne (ścianka kolankowa o wysokości ok. 1,8m), z możliwością przeznaczenia np. na siłownię lub podzielenia na mniejsze części np. pralnię itp.

Rzuty

Rzut 1
Rzut 2

Elewacje

Sytuacja

O autorze projektu E-108

5 890 zł

Tylko u nas możesz negocjować cenę!
Skorzystaj z tej możliwości.

Lustrzane odbicie: niedostępne.

Masz dodatkowe pytania?
Zadzwoń lub zamów rozmowę.

Zamów rozmowę

Pomożemy Ci dopasować do twoich potrzeb mymarzony projekt, wpisz swój numer telefonu nasz konsultant oddzwoni.

Negocjuj cenę projektu E-108

Zapytaj pytanie o projekt E-108

Oceny i komentarze

Napisz swoją opinię