Informujemy, iż nasz sklep internetowy wykorzystuje technologię plików cookies a jednocześnie nie zbiera w sposób automatyczny żadnych informacji, z wyjątkiem informacji zawartych w tych plikach (tzw. „ciasteczkach”).

E-109

  • Tylko online

Dane techniczne

powierzchnia
156.7 m²
wysokość
8.7 m
kąt dachu
22 °
szerokość działki
19.71 m
Liczba pokoi
3
Powierzchnia zabudowy
155.25
kondygnacje
parterowe
garaż
z garażem 2 st.
dach
dach czterospadowy
piwnica
bez piwnicy
kubatura
548.55 m³
dostępne odbicie lustrzane
Nie
Pow. użytkowa
156.7 m²
długość działki
24.61 m
Powierzchnia dachu
150 m²

Opis projektu

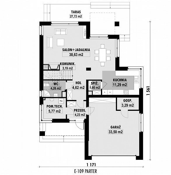
Projekt domu piętrowego z czterospadowym dachem, z dużym dwustanowiskowym garażem, przeznaczonego na wąską działkę. Na parterze zaplanowano przestronny salon z dużą jadalnią. Z jadalni przechodzi się do dużej kuchni. Kuchnię, w zależności od upodobań przyszłych mieszkańców, można wydzielić od salonu i jadalni. Na piętrze znajdują się trzy sypialnie, w tym jedna główna z garderobą, schowkiem i osobną łazienką. Dodatkowo na tym poziomie zaplanowano łazienkę dla reszty rodziny. Nad garażem zaprojektowano duży taras zewnętrzny dostępny z jednej z sypialni. UWAGA: Projekt występuje też w wersji z pojedynczym garażem, jako E-139.

Rzuty

Rzut 1
Rzut 2

Elewacje

Sytuacja

O autorze projektu E-109

6 090 zł

Tylko u nas możesz negocjować cenę!
Skorzystaj z tej możliwości.

Lustrzane odbicie: niedostępne.

Masz dodatkowe pytania?
Zadzwoń lub zamów rozmowę.

Zamów rozmowę

Pomożemy Ci dopasować do twoich potrzeb mymarzony projekt, wpisz swój numer telefonu nasz konsultant oddzwoni.

Negocjuj cenę projektu E-109

Zapytaj pytanie o projekt E-109

Oceny i komentarze

Napisz swoją opinię