- Tylko online
Masz pytania? Chciałbyś negocjować cenę
Zadzwoń! 577 575 011
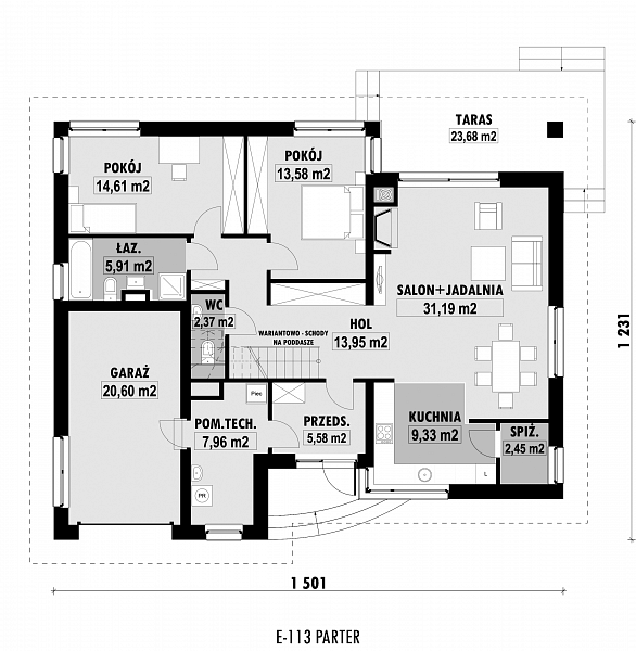
Projekt niewielkiego, nowoczesnego domu z czterospadowym dachem. Dom E-113 to prosta bryła połączona z prostym i uniwersalnym układem funkcjonalnym. Atutem domu jest długi garaż umieszczony w bryle oraz duże pomieszczenie techniczne. Istnieje możliwość zaadaptowania poddasza. W części dziennej zaplanowano salon z jadalnią oraz półotwartą kuchnię ze spiżarnią. W części sypialnej zaplanowano 2 sypialnie wraz z łazienką.
