- Tylko online
Masz pytania? Chciałbyś negocjować cenę
Zadzwoń! 577 575 011
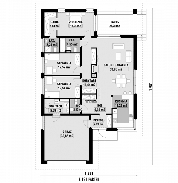
Projekt nowoczesnego wąskiego domu z dwustanowiskowym garażem. W części dziennej zaplanowano salon z jadalnią oraz półotwartą kuchnię. Część sypialną oddzielono od części dziennej ścianą o wysokości 2,2m. Dzięki temu uzyskujemy bardzo przestrzenne wnętrze. W części sypialnianej zaplanowano trzy sypialnie oraz 2 łazienki z wanną i prysznicem. Wysokość pomieszczeń parteru wynosi 2,95m. Istnieje możliwość łatwego zaadaptowania poddasza. Na rzucie pokazano możliwą lokalizację lekkich schodów.
