- Tylko online
Masz pytania? Chciałbyś negocjować cenę
Zadzwoń! 577 575 011
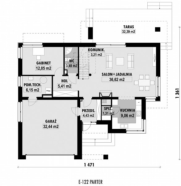
E-122 to projekt domu z pełnowymiarowym piętrem. Jest to zmniejszona wersja projektu E-106, z tarasem przy sypialni na piętrze. Dzięki użyciu m.in. kamienia i drewna, dom prezentuje się jak elegancka rezydencja. Na parterze zaplanowano przestronny salon z jadalnią. W centralnym miejscu umieszczono kominek. Z jadalnią graniczy półotwarta kuchnia ze spiżarnią. Na parterze zaplanowano również dodatkowy pokój z niewielką łazienką z prysznicem. Na piętrze znajdują się trzy sypialnie. Na tym poziomie znajduje się również duża garderoba i łazienka dla całej rodziny.
