- Tylko online
Masz pytania? Chciałbyś negocjować cenę
Zadzwoń! 577 575 011
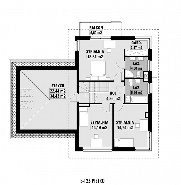
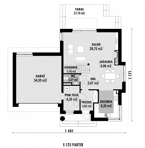
Projekt niedużego, nowoczesnego domu piętrowego z dwustanowiskowym garażem. W części dziennej zaplanowano salon z jadalnią z małym wykuszem oraz kuchnię od strony wejścia. W części sypialnej na piętrze zaplanowano trzy sypialnie, w tym jedną z łazienką i garderobą. Dodatkowo zaplanowano dużą łazienkę z wanną.
