Informujemy, iż nasz sklep internetowy wykorzystuje technologię plików cookies a jednocześnie nie zbiera w sposób automatyczny żadnych informacji, z wyjątkiem informacji zawartych w tych plikach (tzw. „ciasteczkach”).

E-127

  • Tylko online

Dane techniczne

powierzchnia
177.82 m²
wysokość
8.23 m
kąt dachu
37 °
szerokość działki
23.01 m
Liczba pokoi
5
Powierzchnia zabudowy
168.22
kondygnacje
parterowe
garaż
z garażem 2 st.
dach
dach dwuspadowy
piwnica
bez piwnicy
kubatura
641.63 m³
dostępne odbicie lustrzane
Nie
Pow. użytkowa
177.82 m²
długość działki
21.91 m
Powierzchnia dachu
245 m²

Opis projektu

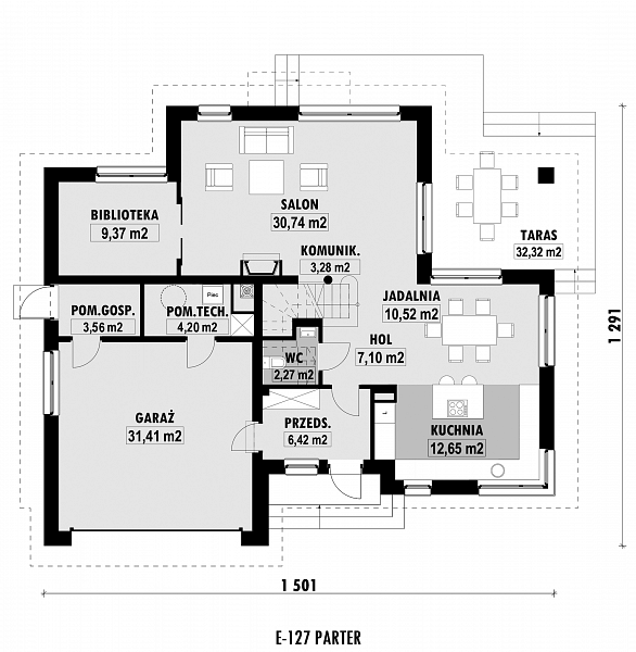
Projekt przestronnego domu z salonem, aneksem bibliotecznym, jadalnią, kuchnią i dużym zadaszonym tarasem. Wyjście na taras jest możliwe z salonu oraz jadalni i kuchni. Biblioteka zlokalizowana jest od strony ogrodu. Przy garażu znajduje się dodatkowe pom. gospodarcze. Na poddaszu zaprojektowano trzy sypialnie oraz dodatkowa przestrzeń rekreacyjna, a także przestrzeń na schowek lub garderobę.

Rzuty

Rzut 1
Rzut 2

Elewacje

Sytuacja

O autorze projektu E-127

6 290 zł

Tylko u nas możesz negocjować cenę!
Skorzystaj z tej możliwości.

Lustrzane odbicie: niedostępne.

Masz dodatkowe pytania?
Zadzwoń lub zamów rozmowę.

Zamów rozmowę

Pomożemy Ci dopasować do twoich potrzeb mymarzony projekt, wpisz swój numer telefonu nasz konsultant oddzwoni.

Negocjuj cenę projektu E-127

Zapytaj pytanie o projekt E-127

Oceny i komentarze

Napisz swoją opinię