- Tylko online
Masz pytania? Chciałbyś negocjować cenę
Zadzwoń! 577 575 011
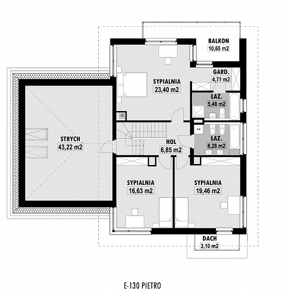
Projekt domu z pełnowymiarowym piętrem oraz garażem na dwa samochody. Wykończenie klinkierem i drewnem egzotycznym, podkreśla elegancki charakter budynku. Na parterze zaplanowano przestronny salon z jadalnią. Z jadalnią graniczy półotwarta kuchnia ze spiżarnią. Na parterze zaplanowano również dodatkowy pokój do pracy. Na piętrze znajdują się trzy sypialnie. Przy sypialni głównej zaprojektowano garderobę i osobną łazienkę z prysznicem i wanną. Dla reszty rodziny zaprojektowano drugą dużą łazienkę. Na piętrze pokazujemy powierzchnię strychową z możliwością zaadaptowania. Dla zobrazowania jej wielkości, na rysunku podano powierzchnię netto, tj. po obrysie ścian.
