Informujemy, iż nasz sklep internetowy wykorzystuje technologię plików cookies a jednocześnie nie zbiera w sposób automatyczny żadnych informacji, z wyjątkiem informacji zawartych w tych plikach (tzw. „ciasteczkach”).

E-139

  • Tylko online

Dane techniczne

powierzchnia
150.31 m²
wysokość
8.7 m
kąt dachu
22 °
szerokość działki
18.21 m
Liczba pokoi
3
Powierzchnia zabudowy
134
kondygnacje
parterowe
garaż
z garażem 1 st.
dach
dach czterospadowy
piwnica
bez piwnicy
kubatura
494.08 m³
dostępne odbicie lustrzane
Nie
Pow. użytkowa
150.31 m²
długość działki
24.31 m
Powierzchnia dachu
150 m²

Opis projektu

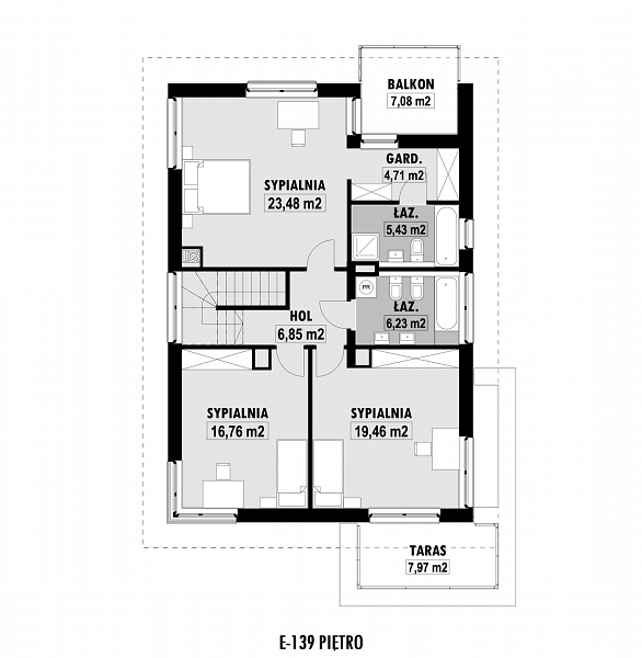
Projekt domu piętrowego z czterospadowym dachem, z jednostanowiskowym garażem, przeznaczonego na wąską działkę. Na parterze zaplanowano salon z jadalnią, z której przechodzi się do kuchni. Kuchnię, w zależności od upodobań przyszłych mieszkańców, można oddzielić od salonu i jadalni. Na piętrze znajdują się trzy sypialnie, w tym jedna główna z garderobą, schowkiem i osobną łazienką. Dodatkowo na tym poziomie zaplanowano łazienkę dla reszty rodziny. Nad garażem zaprojektowano taras zewnętrzny dostępny z jednej z sypialni. UWAGA: Projekt występuje też w wersji z podwójnym garażem, jako E-109.

Rzuty

Rzut 1
Rzut 2

Elewacje

Sytuacja

O autorze projektu E-139

5 990 zł

Tylko u nas możesz negocjować cenę!
Skorzystaj z tej możliwości.

Lustrzane odbicie: niedostępne.

Masz dodatkowe pytania?
Zadzwoń lub zamów rozmowę.

Zamów rozmowę

Pomożemy Ci dopasować do twoich potrzeb mymarzony projekt, wpisz swój numer telefonu nasz konsultant oddzwoni.

Negocjuj cenę projektu E-139

Zapytaj pytanie o projekt E-139

Oceny i komentarze

Napisz swoją opinię