Informujemy, iż nasz sklep internetowy wykorzystuje technologię plików cookies a jednocześnie nie zbiera w sposób automatyczny żadnych informacji, z wyjątkiem informacji zawartych w tych plikach (tzw. „ciasteczkach”).

E-141

  • Tylko online

Dane techniczne

powierzchnia
108.32 m²
wysokość
7.8 m
kąt dachu
30 °
szerokość działki
20.61 m
Liczba pokoi
2
Powierzchnia zabudowy
186.77
kondygnacje
parterowe
garaż
z garażem 2 st.
dach
dach czterospadowy
piwnica
bez piwnicy
kubatura
423.6 m³
dostępne odbicie lustrzane
Nie
Pow. użytkowa
108.32 m²
długość działki
25.81 m
Powierzchnia dachu
255 m²

Opis projektu

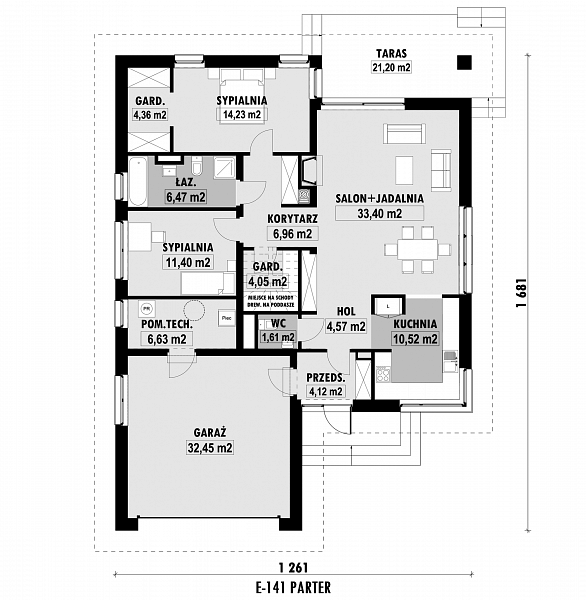
Projekt małego domu parterowego z dwoma pokojami na parterze z dużą łazienką, oraz dużą garderobą. Salon i jedna sypialnia posiadają wyjście na zadaszony taras. Istnieje możliwość wykorzystania miejsca przeznaczonego na garderobę i zbudowania tam schodów na poddasze. W ten sposób można powiększyć pow. użytkową, adaptując poddasze, nawet po zakończeniu budowy.  Po zaadaptowaniu, poddasze można podzielić np. na dwie sypialnie oraz łazienkę.  

Rzuty

Rzut 1
Rzut 2

Elewacje

Sytuacja

O autorze projektu E-141

5 190 zł

Tylko u nas możesz negocjować cenę!
Skorzystaj z tej możliwości.

Lustrzane odbicie: niedostępne.

Masz dodatkowe pytania?
Zadzwoń lub zamów rozmowę.

Zamów rozmowę

Pomożemy Ci dopasować do twoich potrzeb mymarzony projekt, wpisz swój numer telefonu nasz konsultant oddzwoni.

Negocjuj cenę projektu E-141

Zapytaj pytanie o projekt E-141

Oceny i komentarze

Napisz swoją opinię