- Tylko online
Masz pytania? Chciałbyś negocjować cenę
Zadzwoń! 577 575 011
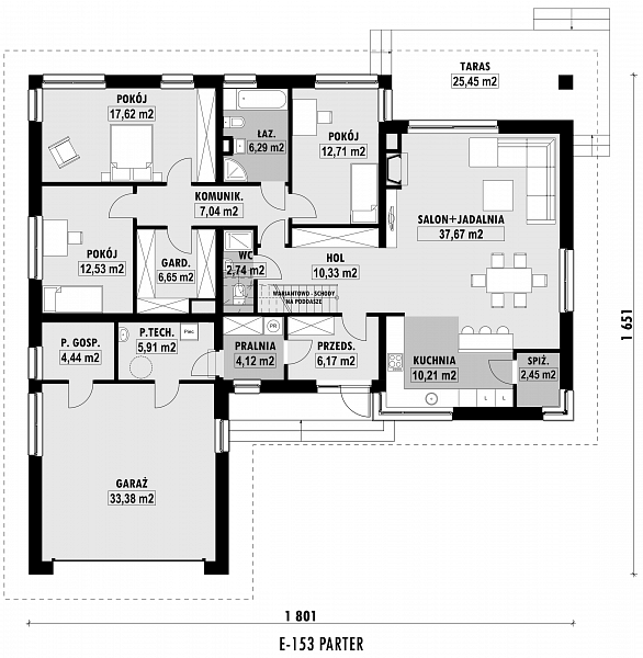
Duży dom parterowy o funkcjonalnym rozkładzie pomieszczeń. Przestrzeń domu została dopasowana do potrzeb 4-5 osobowej rodziny. Połączenie salonu z jadalnią i otwarcie kuchni sprawiło, że część dzienna jest przestronna i widna. W strefie sypialnej zaprojektowano 3 sypialnie oraz dużą, wspólną garderobę. W strefie przejścia z garażu do domu zaprojektowano oddzielne pomieszczenie na pralnię. Dom posiada strych/nieużytkowe poddasze, które w łatwy i szybki sposób można zaadaptować na cele mieszkaniowe. Na rysunku podano powierzchnię netto poddasza, tj. po obrysie ścian.
