- Tylko online
Masz pytania? Chciałbyś negocjować cenę
Zadzwoń! 577 575 011
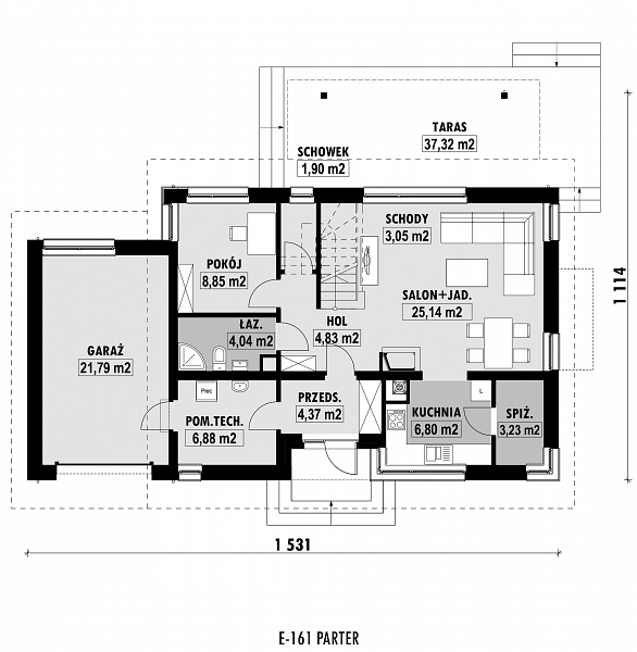
Dom o prostej konstrukcji, w którym fasadę wykończono naturalnymi materiałami (drewno i szara cegła). Salon z jadalnią tworzą jedną przestrzeń, z której zapewniono dostęp do wygodnej, wyposażonej w odrębną spiżarnię kuchni. Na parterze znajduje się także oddzielony pokój idealny na gabinet a także praktyczny schowek pod schodami. Na piętrze zaprojektowane zostały 3 sypialnie, łazienka oraz pomieszczenie na pralnię.
