- Tylko online
Masz pytania? Chciałbyś negocjować cenę
Zadzwoń! 577 575 011
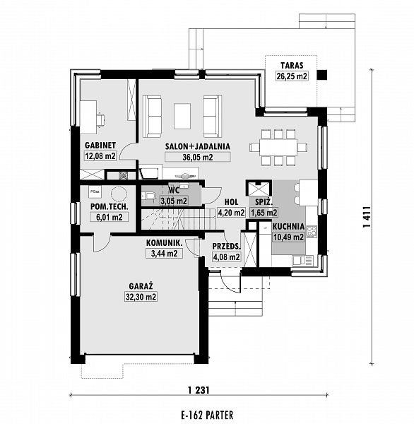
Projekt domu piętrowego, na wąską działkę, z trzema komfortowymi sypialniami na piętrze. Na parterze znajduje się dodatkowy pokój dostępny z salonu, może pełnić rolę gabinetu. Z salonu możemy przejść do wygodnej półotwartej kuchni ze stolikiem śniadaniowym. Przy kuchni znajduje się niewielka przechodnia spiżarnia. Salon i jadalnia wychodzą szerokimi przeszkleniami na zadaszony taras. Każda z sypialni na piętrze posiada własną garderobę, a główna sypialnia nad garażem posiada również własną łazienkę. Na piętrze znajduje się również odrębne pomieszczenie pralni.
