- Tylko online
Masz pytania? Chciałbyś negocjować cenę
Zadzwoń! 577 575 011
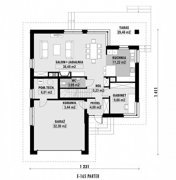
E-165 to projekt niedużego domu z poddaszem użytkowym. Charakterystyczne cechy protjktu to duży, przestrzenny pokój dzienny (około 38,5m2) z miejscem na duży stół oraz dodatkowy pokój na parterze, zlokalizowany od frontu, mogący pełnić rolę gabinetu. Przy salonie zlokalizowano wygodną półotwartą kuchnię z wyjściem na taras. Na poddaszu zaplanowano trzy sypialnie, a duża sypialnia nad garażem wyposażona w przechodnią garderobę i łazienkę.
