Informujemy, iż nasz sklep internetowy wykorzystuje technologię plików cookies a jednocześnie nie zbiera w sposób automatyczny żadnych informacji, z wyjątkiem informacji zawartych w tych plikach (tzw. „ciasteczkach”).

E-166

  • Tylko online

Dane techniczne

powierzchnia
182.99 m²
wysokość
8.89 m
kąt dachu
22 °
szerokość działki
22.81 m
Liczba pokoi
5
Powierzchnia zabudowy
169.14
kondygnacje
parterowe
garaż
z garażem 2 st.
dach
dach czterospadowy
piwnica
bez piwnicy
kubatura
631.84 m³
dostępne odbicie lustrzane
Nie
Pow. użytkowa
182.99 m²
długość działki
22.51 m
Powierzchnia dachu
210 m²

Opis projektu

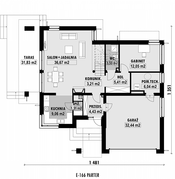
Projekt dwukondygnacyjnego domu na działkę z wjazdem od południa, opracowany na bazie projektu E-106. Atutem domu jest bardzo dobrze doświetlony salon i jadalnia, a także taras - zlokalizowane od zachodu. Do wykończenia użyto szlachetnych materiałów, takich jak kamień i drewno. Ważnym elementem salonu są kominek oraz atrakcyjne otwarte schody, powiększające optycznie przestrzeń. Przy jadalni znajduje się wydzielona kuchnia ze spiżarnią. Na parterze zaplanowano pokój gościnny z niewielkim WC z prysznicem, oraz część techniczną z garażem. Na piętrze zaprojektowano dużą łazienkę oraz cztery sypialnie, z których dwie posiadają balkony.

Rzuty

Rzut 1
Rzut 2

Elewacje

Sytuacja

O autorze projektu E-166

6 890 zł

Tylko u nas możesz negocjować cenę!
Skorzystaj z tej możliwości.

Lustrzane odbicie: niedostępne.

Masz dodatkowe pytania?
Zadzwoń lub zamów rozmowę.

Zamów rozmowę

Pomożemy Ci dopasować do twoich potrzeb mymarzony projekt, wpisz swój numer telefonu nasz konsultant oddzwoni.

Negocjuj cenę projektu E-166

Zapytaj pytanie o projekt E-166

Oceny i komentarze

Napisz swoją opinię