Informujemy, iż nasz sklep internetowy wykorzystuje technologię plików cookies a jednocześnie nie zbiera w sposób automatyczny żadnych informacji, z wyjątkiem informacji zawartych w tych plikach (tzw. „ciasteczkach”).

E-177

  • Tylko online

Dane techniczne

powierzchnia
148.21 m²
wysokość
8.19 m
kąt dachu
35 °
szerokość działki
20.31 m
Liczba pokoi
4
Powierzchnia zabudowy
144.25
kondygnacje
parterowe
garaż
z garażem 1 st.
dach
dach czterospadowy
piwnica
bez piwnicy
kubatura
507.79 m³
dostępne odbicie lustrzane
Nie
Pow. użytkowa
148.21 m²
długość działki
21.31 m
Powierzchnia dachu
220 m²

Opis projektu

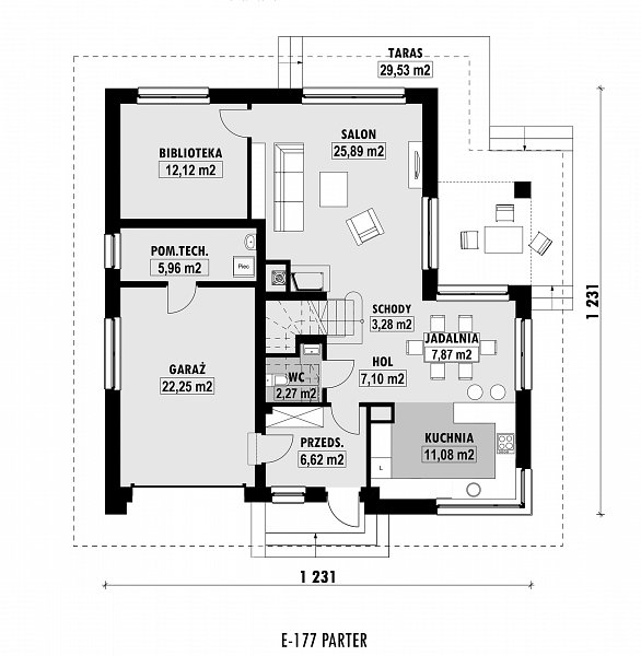
Prosty dom z jednostanowiskowym garażem. Część dzienna jest strefą otwartą, gdzie przestrzeń salonu, jadalni i kuchni wzajemnie się przenika. Przy kuchni zaprojektowano użyteczną spiżarkę. Dzięki odpowiedniemu usytuowaniu salonu i jadalni - na zadaszony taras można wyjść z obu przestrzeni. Atutem domu jest duża biblioteka, którą można zaaranżować na sypialnię lub pracownię. Bibliotekę oddzielono od części wspólnej ścianą działową, dzięki czemu łatwo można przearanżować całość na strefę dzienną. Na poddaszu znajdują się 3 sypialnie z garderobami. W sypialni na garażem, dzięki obniżeniu stropu, zaprojektowano wyższą ściankę kolankową, poprawiającą jej funkcjonalność.

Rzuty

Rzut 1
Rzut 2

Elewacje

Sytuacja

O autorze projektu E-177

5 290 zł

Tylko u nas możesz negocjować cenę!
Skorzystaj z tej możliwości.

Lustrzane odbicie: niedostępne.

Masz dodatkowe pytania?
Zadzwoń lub zamów rozmowę.

Zamów rozmowę

Pomożemy Ci dopasować do twoich potrzeb mymarzony projekt, wpisz swój numer telefonu nasz konsultant oddzwoni.

Negocjuj cenę projektu E-177

Zapytaj pytanie o projekt E-177

Oceny i komentarze

Napisz swoją opinię