Informujemy, iż nasz sklep internetowy wykorzystuje technologię plików cookies a jednocześnie nie zbiera w sposób automatyczny żadnych informacji, z wyjątkiem informacji zawartych w tych plikach (tzw. „ciasteczkach”).

E-180

  • Tylko online

Dane techniczne

powierzchnia
103.68 m²
wysokość
7.4 m
kąt dachu
32 °
szerokość działki
18.51 m
Liczba pokoi
2
Powierzchnia zabudowy
186.78
kondygnacje
parterowe
garaż
z garażem 1 st.
dach
dach czterospadowy
piwnica
bez piwnicy
kubatura
377.78 m³
dostępne odbicie lustrzane
Nie
Pow. użytkowa
103.68 m²
długość działki
28.21 m
Powierzchnia dachu
265 m²

Opis projektu

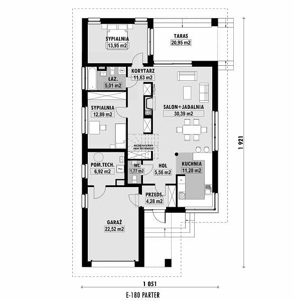
Projekt nowoczesnego domu na wąską działkę z jednostanowiskowym garażem. Jest to pomniejszona wersja projektu E-121. W części dziennej zaplanowano salon z jadalnią oraz półotwartą kuchnię. Część sypialną oddzielono od części dziennej ścianą o wysokości 2,2m. Dzięki temu uzyskujemy bardzo przestrzenne wnętrze. W części sypialnianej zaplanowano 2 sypialnie oraz łazienkę z wanną + WC. Wysokość pomieszczeń parteru wynosi 2,95m. Istnieje możliwość łatwego zaadaptowania poddasza. Na rzucie pokazano możliwą lokalizację lekkich schodów.

Rzuty

Rzut 1
Rzut 2

Elewacje

Sytuacja

O autorze projektu E-180

5 290 zł

Tylko u nas możesz negocjować cenę!
Skorzystaj z tej możliwości.

Lustrzane odbicie: niedostępne.

Masz dodatkowe pytania?
Zadzwoń lub zamów rozmowę.

Zamów rozmowę

Pomożemy Ci dopasować do twoich potrzeb mymarzony projekt, wpisz swój numer telefonu nasz konsultant oddzwoni.

Negocjuj cenę projektu E-180

Zapytaj pytanie o projekt E-180

Oceny i komentarze

Napisz swoją opinię