- Tylko online
Masz pytania? Chciałbyś negocjować cenę
Zadzwoń! 577 575 011
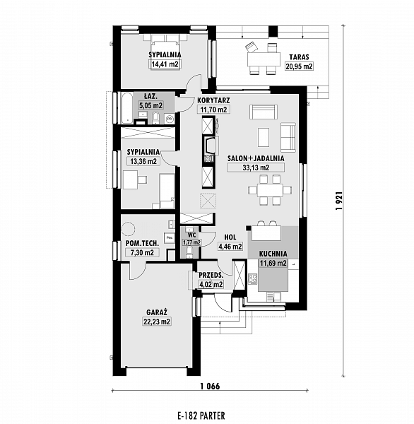
Projekt nowoczesnego domu z jednostanowiskowym garażem i zpłaskim dachem. Jest to mniejsza wersja projektu E-183. W części dziennej zaplanowano salon z jadalnią oraz otwartą kuchnię. Część sypialną oddzielono od części dziennej ścianą o wysokości 2,2m. W części sypialnianej zaplanowano dwie sypialnie, 2 łazienki z wanną i prysznicem. Wysokość pomieszczeń parteru wynosi 2,95m.
