- Tylko online
Masz pytania? Chciałbyś negocjować cenę
Zadzwoń! 577 575 011
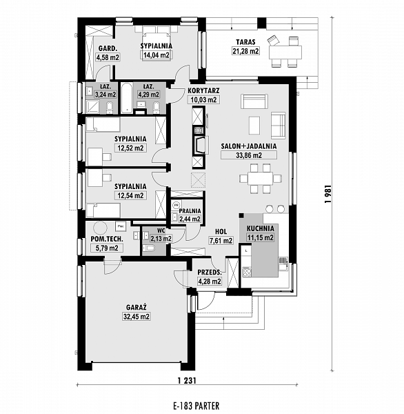
Projekt nowoczesnego domu z dwustanowiskowym garażem i zpłaskim dachem. Jest to powiększona wersja projektu E-182. W części dziennej zaplanowano salon z jadalnią oraz kuchnię. Część sypialną oddzielono od części dziennej ścianą o wysokości 2,2m. W części sypialnianej zaplanowano trzy sypialnie, 2 łazienki z wanną i prysznicem, oraz oddzielna pralnia. Wysokość pomieszczeń parteru wynosi 2,95m.
