Informujemy, iż nasz sklep internetowy wykorzystuje technologię plików cookies a jednocześnie nie zbiera w sposób automatyczny żadnych informacji, z wyjątkiem informacji zawartych w tych plikach (tzw. „ciasteczkach”).

E-187

  • Tylko online

Dane techniczne

powierzchnia
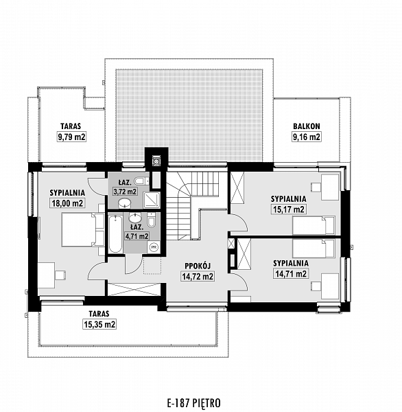
157.28 m²
wysokość
7.62 m
kąt dachu
1 °
szerokość działki
23.01 m
Liczba pokoi
4
Powierzchnia zabudowy
183.12
kondygnacje
parterowe
garaż
z garażem 2 st.
dach
dach płaski
piwnica
bez piwnicy
kubatura
590.06 m³
dostępne odbicie lustrzane
Nie
Pow. użytkowa
157.28 m²
długość działki
22.86 m
Powierzchnia dachu
113.1 m²

Opis projektu

Rzuty

Rzut 1
Rzut 2

Elewacje

Sytuacja

O autorze projektu E-187

5 790 zł

Tylko u nas możesz negocjować cenę!
Skorzystaj z tej możliwości.

Lustrzane odbicie: niedostępne.

Masz dodatkowe pytania?
Zadzwoń lub zamów rozmowę.

Zamów rozmowę

Pomożemy Ci dopasować do twoich potrzeb mymarzony projekt, wpisz swój numer telefonu nasz konsultant oddzwoni.

Negocjuj cenę projektu E-187

Zapytaj pytanie o projekt E-187

Oceny i komentarze

Napisz swoją opinię