Informujemy, iż nasz sklep internetowy wykorzystuje technologię plików cookies a jednocześnie nie zbiera w sposób automatyczny żadnych informacji, z wyjątkiem informacji zawartych w tych plikach (tzw. „ciasteczkach”).

E-195

  • Tylko online

Dane techniczne

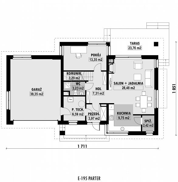
powierzchnia
158.54 m²
wysokość
8.43 m
kąt dachu
38 °
szerokość działki
25.11 m
Liczba pokoi
5
Powierzchnia zabudowy
163.63
kondygnacje
parterowe
garaż
z garażem 2 st.
dach
dach dwuspadowy
piwnica
bez piwnicy
kubatura
575.99 m³
dostępne odbicie lustrzane
Nie
Pow. użytkowa
158.54 m²
długość działki
19.51 m
Powierzchnia dachu
240 m²

Opis projektu

Rzuty

Rzut 1
Rzut 2

Elewacje

Sytuacja

O autorze projektu E-195

5 890 zł

Tylko u nas możesz negocjować cenę!
Skorzystaj z tej możliwości.

Lustrzane odbicie: niedostępne.

Masz dodatkowe pytania?
Zadzwoń lub zamów rozmowę.

Zamów rozmowę

Pomożemy Ci dopasować do twoich potrzeb mymarzony projekt, wpisz swój numer telefonu nasz konsultant oddzwoni.

Negocjuj cenę projektu E-195

Zapytaj pytanie o projekt E-195

Oceny i komentarze

Napisz swoją opinię