Informujemy, iż nasz sklep internetowy wykorzystuje technologię plików cookies a jednocześnie nie zbiera w sposób automatyczny żadnych informacji, z wyjątkiem informacji zawartych w tych plikach (tzw. „ciasteczkach”).

E-221

  • Tylko online

Dane techniczne

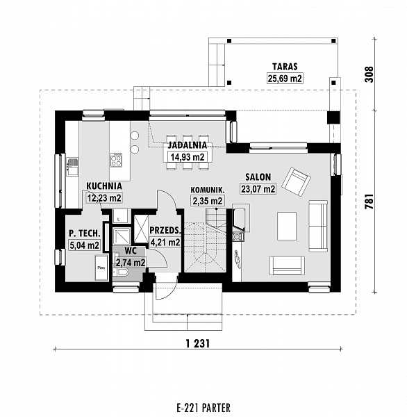
powierzchnia
113.88 m²
wysokość
8.62 m
kąt dachu
45 °
szerokość działki
20.31 m
Liczba pokoi
3
Powierzchnia zabudowy
96.83
kondygnacje
parterowe
garaż
bez garażu
dach
dach dwuspadowy
piwnica
bez piwnicy
kubatura
347.73 m³
dostępne odbicie lustrzane
Nie
Pow. użytkowa
113.88 m²
długość działki
18.91 m
Powierzchnia dachu
180 m²

Opis projektu

Rzuty

Rzut 1
Rzut 2

Elewacje

Sytuacja

O autorze projektu E-221

4 890 zł

Tylko u nas możesz negocjować cenę!
Skorzystaj z tej możliwości.

Lustrzane odbicie: niedostępne.

Masz dodatkowe pytania?
Zadzwoń lub zamów rozmowę.

Zamów rozmowę

Pomożemy Ci dopasować do twoich potrzeb mymarzony projekt, wpisz swój numer telefonu nasz konsultant oddzwoni.

Negocjuj cenę projektu E-221

Zapytaj pytanie o projekt E-221

Oceny i komentarze

Napisz swoją opinię