Informujemy, iż nasz sklep internetowy wykorzystuje technologię plików cookies a jednocześnie nie zbiera w sposób automatyczny żadnych informacji, z wyjątkiem informacji zawartych w tych plikach (tzw. „ciasteczkach”).

E-225

  • Tylko online

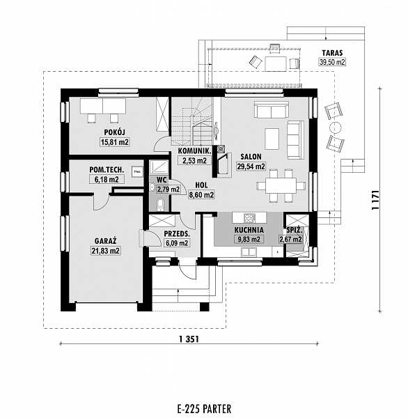
Dane techniczne

powierzchnia
134.59 m²
wysokość
8.12 m
kąt dachu
37 °
szerokość działki
21.51 m
Liczba pokoi
4
Powierzchnia zabudowy
144.52
kondygnacje
parterowe
garaż
z garażem 1 st.
dach
dach czterospadowy
piwnica
bez piwnicy
kubatura
499.54 m³
dostępne odbicie lustrzane
Nie
Pow. użytkowa
134.59 m²
długość działki
21.46 m
Powierzchnia dachu
230 m²

Opis projektu

Rzuty

Rzut 1
Rzut 2

Elewacje

Sytuacja

O autorze projektu E-225

5 890 zł

Tylko u nas możesz negocjować cenę!
Skorzystaj z tej możliwości.

Lustrzane odbicie: niedostępne.

Masz dodatkowe pytania?
Zadzwoń lub zamów rozmowę.

Zamów rozmowę

Pomożemy Ci dopasować do twoich potrzeb mymarzony projekt, wpisz swój numer telefonu nasz konsultant oddzwoni.

Negocjuj cenę projektu E-225

Zapytaj pytanie o projekt E-225

Oceny i komentarze

Napisz swoją opinię