- Tylko online
Masz pytania? Chciałbyś negocjować cenę
Zadzwoń! 577 575 011
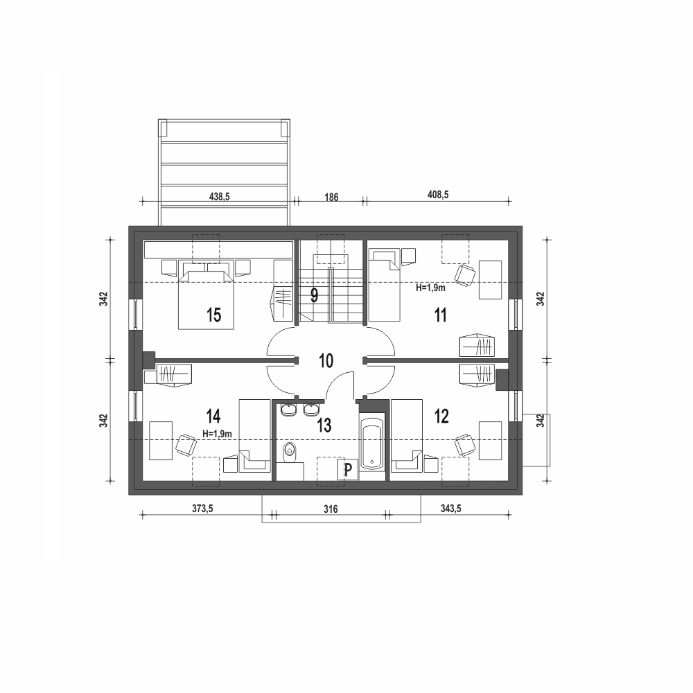
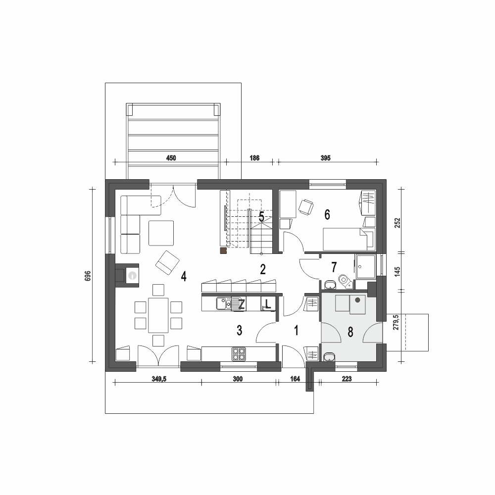
Eco 5 to projekt nowoczesnego domu z serii ECO (to seria projektów domów ekonomicznych: oszczędnych w kosztach budowy oraz w użytkowaniu,). Projekt przewidziany jest dla 4 osobowej rodziny. Na parterze projektuje się cześć ogólną, z otwartym salonem, jadalnią, kuchnią, dodatkowym pokojem sypialnym i łazienką. Z wiatrołapu dostępna jest kotłownia na paliwo stałe, która ma również dostęp od zewnątrz, co ułatwi np dostarczanie paliwa. Poddasze to część prywatna, obejmująca: aż cztery sypialnie oraz wspólną łazienkę.fundamenty: BETONOWE ściany zewnętrzne: POROTHERM+STYROPIAN TERMO ORGANIKA ściany wewnętrzne: POROTHERM, CEGŁ.DZIURAWKA rodzaj stropu: TERIVA I BIS elewacje: TYNK STRUKTURALNY pokrycie dachu: DACHÓWKA CEM. lub CERAM.
