- Tylko online
Masz pytania? Chciałbyś negocjować cenę
Zadzwoń! 577 575 011
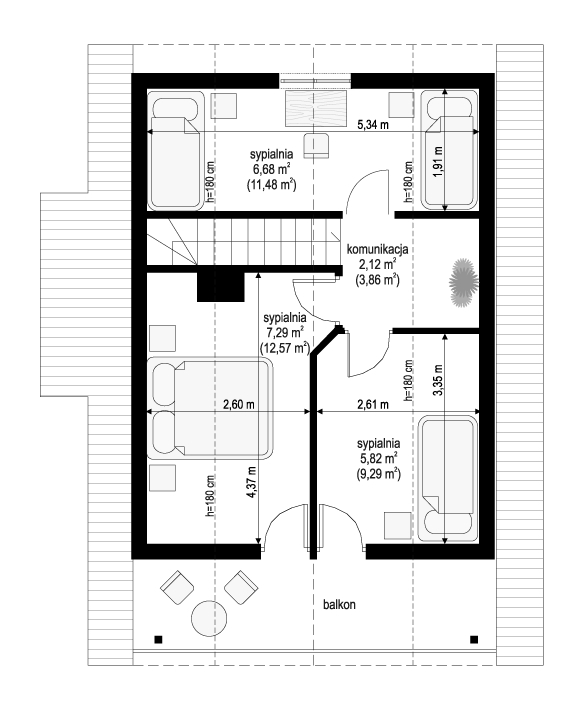
Projekt domu Chatka to wymarzony dom na działkę rekreacyjną lub do całorocznego zamieszkania dla małej rodziny. Domek mimo niewielkiej powierzchni mieści w sobie wszystkie potrzebne pomieszczenia: na parterze wygodny salon z kominkiem, kuchnią i łazienką, na poddaszu 2 lub 3 sypialnie. W projekcie domu Chatka zaplanowano dodatkowe wejście z dobudowanego ganku, co pozwala na umieszczenie drzwi wejściowych z przodu lub z tyłu domu. Pod dużym podcieniem wiszącym nad tarasem można schronić się przed deszczem lub słońcem, zaś z wygodnego balkonu podziwiać piękną okolicę. W ofercie pracowni MG Projekt można też znaleźć inne wersje projektu Chatka - projekt domu Chatka 2 i Chatka drewniana.
