- Tylko online
Masz pytania? Chciałbyś negocjować cenę
Zadzwoń! 577 575 011
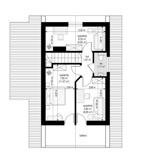
Projekt domu Chatka 2 stanowi powiększoną wersję popularnego projektu Chatka. Dom Chatka 2 jest domem jednorodzinnym dla 3-4 osobowej rodziny. Dom Chatka 2 może służyć również jako domek letniskowy. Bryła budynku, przekryta jest stromym dwuspadowym dachem. Duży balkon i zadaszony taras od strony ogrodowej, oraz szerokie przeszklone wyjście z salonu dają fantastyczny efekt otwarcia na ogród. Duża ilość drewna w elewacji oraz kamienne okładziny - to delikatne nawiązanie do architektury podhalańskiej. Jednocześnie dom ma na tyle delikatną linię, że nie będzie raził swoim wyglądem postawiony na przykład na Mazurach. We wnętrzu domu Chatka 2 zaprojektowano na parterze duży salon z wyeksponowanymi schodami i kominkiem, półotwartą kuchnię, łazienkę, kotłownię z piecem centralnego ogrzewania i przedsionek. Na poddaszu zaplanowano trzy niewielkie sypialnie, oraz przydatne wc. Pracownia posiada również wersję odbicia lustrzanego projektu. Zapraszamy do zapoznania się z pełną ofertą pracowni MG Projekt: Chatka, Chatka drewniana.
