Informujemy, iż nasz sklep internetowy wykorzystuje technologię plików cookies a jednocześnie nie zbiera w sposób automatyczny żadnych informacji, z wyjątkiem informacji zawartych w tych plikach (tzw. „ciasteczkach”).

Chatka drewniana

  • Tylko online

Dane techniczne

powierzchnia
67.95 m²
wysokość
7.27 m
kąt dachu
50 °
szerokość działki
16.5 m
Liczba pokoi
4
Powierzchnia zabudowy
56.1
kondygnacje
parterowe
garaż
bez garażu
dach
dach dwuspadowy
konstrukcja
szkieletowe
zabudowa
domy wolnostojące
piwnica
bez piwnicy
kubatura
238 m³
dostępne odbicie lustrzane
Nie
Pow. użytkowa
67.95 m²
długość działki
15.68 m
Liczba łazienek
1
Pow. netto
70.68
Powierzchnia dachu
124.5 m²

Opis projektu

Projekt domu Chatka Drewniana to wymarzony dom na działkę rekreacyjną lub do całorocznego zamieszkiwania. Mimo niewielkiej powierzchni cechuje się funkcjonalnym wnętrzem i mieści w sobie wszystkie potrzebne pomieszczenia: na dole wygodny salon z kominkiem, kuchnią i łazienką, na poddaszu 2 lub 3 sypialnie. Pod dużym podcieniem wiszącym nad tarasem można schronić się przed deszczem lub słońcem, zaś z wygodnego balkonu podziwiać piękną okolicę. Pracownia posiada projekt Chatka drewniana w technologii drewnianej szkieletowej oraz w wersji murowanej. Zapraszamy do zapoznania się z pełną ofertą pracowni MG Projekt: Chatka, Chatka 2.

Rzuty

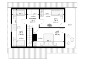
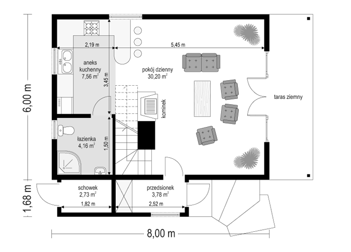
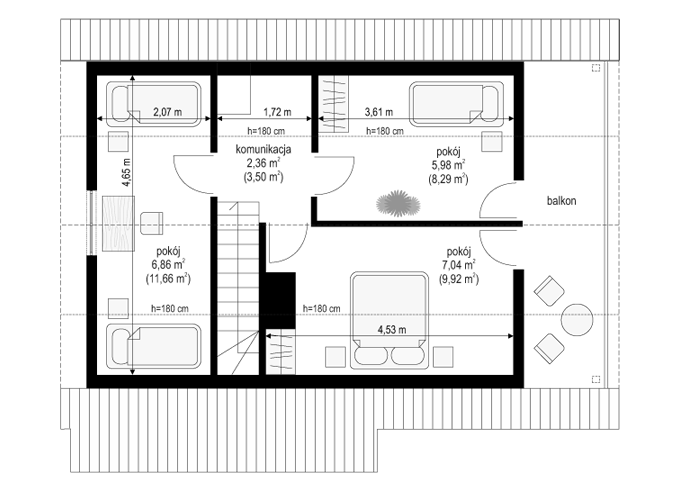
Kondygnacja 1
Kondygnacja 3

Elewacje

Sytuacja

O autorze projektu Chatka drewniana

4 950 zł

Tylko u nas możesz negocjować cenę!
Skorzystaj z tej możliwości.

Lustrzane odbicie: niedostępne.

Masz dodatkowe pytania?
Zadzwoń lub zamów rozmowę.

Zamów rozmowę

Pomożemy Ci dopasować do twoich potrzeb mymarzony projekt, wpisz swój numer telefonu nasz konsultant oddzwoni.

Negocjuj cenę projektu Chatka drewniana

Zapytaj pytanie o projekt Chatka drewniana

Oceny i komentarze

Napisz swoją opinię