- Tylko online
Masz pytania? Chciałbyś negocjować cenę
Zadzwoń! 577 575 011
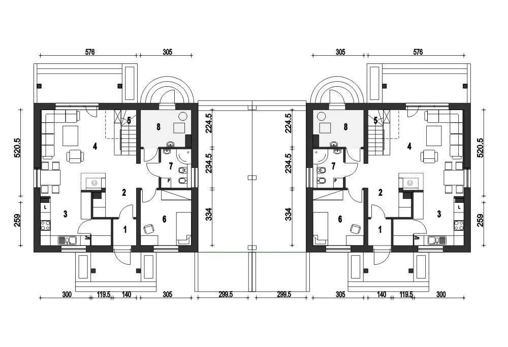
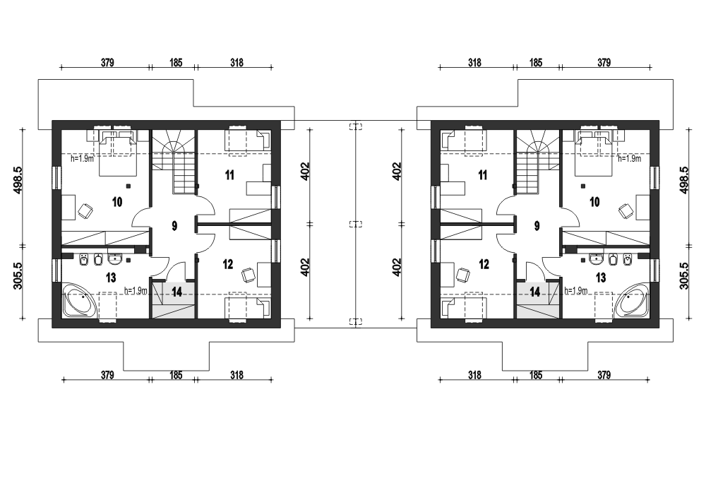
(Uwaga: ten projekt typu bliźniak oferujemy tylko jako dom dwulokalowy). Poniższy opis dotyczy jednego segmentu; Projekt gotowy Gajówka zawiera w swoim programie użytkowym:salon z jadalnią, otwarta kuchnią, schodami na górę i kominkiem oraz witryna ogrodową. Na parterze po za tym znajdują się jeszcze takie pomieszczenia jak: garderoba wiatrołap , WC, garaż i kotłownia oraz spiżarnia. Piętro składa się z przedpokoju, trzech sypialni i łazienki oraz garderoby.Wyraźny podział na strefy dzienną i nocną zapewni mieszkańcom domu wygodę i komfort.Gajówka jest bardzo prosta i oszczędna - będzie tania w budowie i ekonomiczna.
