Informujemy, iż nasz sklep internetowy wykorzystuje technologię plików cookies a jednocześnie nie zbiera w sposób automatyczny żadnych informacji, z wyjątkiem informacji zawartych w tych plikach (tzw. „ciasteczkach”).

Gajówka B-BL1

Lustrzane odbicie
  • Tylko online

Dane techniczne

powierzchnia
231.4 m²
wysokość
8.8 m
kąt dachu
40 °
szerokość działki
27.8 m
Liczba pokoi
10
Powierzchnia zabudowy
177.8
kondygnacje
z poddaszem użytkowym
garaż
bez garażu
dach
dach dwuspadowy
konstrukcja
murowane
zabudowa
domy bliźniacze
piwnica
bez piwnicy
dostępne odbicie lustrzane
Tak
Pow. użytkowa
231.4 m²
długość działki
17.1 m
Liczba łazienek
4
Powierzchnia dachu
304.8 m²

Opis projektu

(Uwaga: projekty typu bliźniak oferujemy jako domy dwulokalowe, projekt można zamówić również w zabudowie bliźniaczej) Poniższy opis dotyczy jednego segmentu; Projekt gotowy Gajówka zawiera w swoim programie użytkowym:salon z jadalnią, otwarta kuchnią, schodami na górę i kominkiem oraz witryna ogrodową. Na parterze po za tym znajdują się jeszcze takie pomieszczenia jak: garderoba wiatrołap , WC, garaż i kotłownia oraz spiżarnia. Piętro składa się z przedpokoju, trzech sypialni i łazienki oraz garderoby.Wyraźny podział na strefy dzienną i nocną zapewni mieszkańcom domu wygodę i komfort.Gajówka jest bardzo prosta i oszczędna - będzie tania w budowie i ekonomiczna.

Rzuty

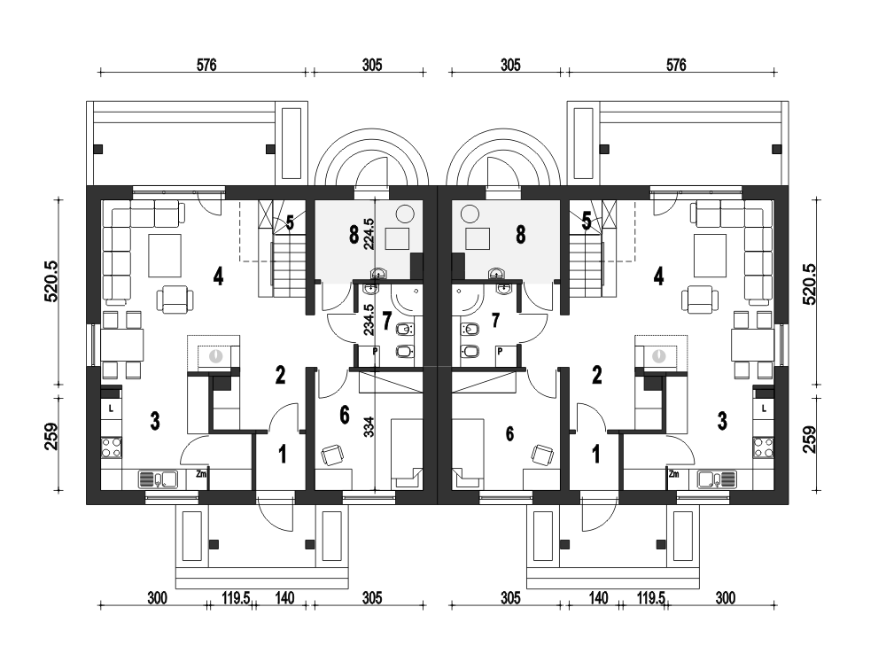
Parter
1. wiatrołap
2,1 m2
2. komunikacja
9,6 m2
3. kuchnia+spiżarnia
10,9 m2
4. salon
22,9 m2
5. schody
4,0 m2
6. pokój gościnny
10,0 m2
7. łazienka
4,2 m2
8. pom. tech.*
6,4 m2
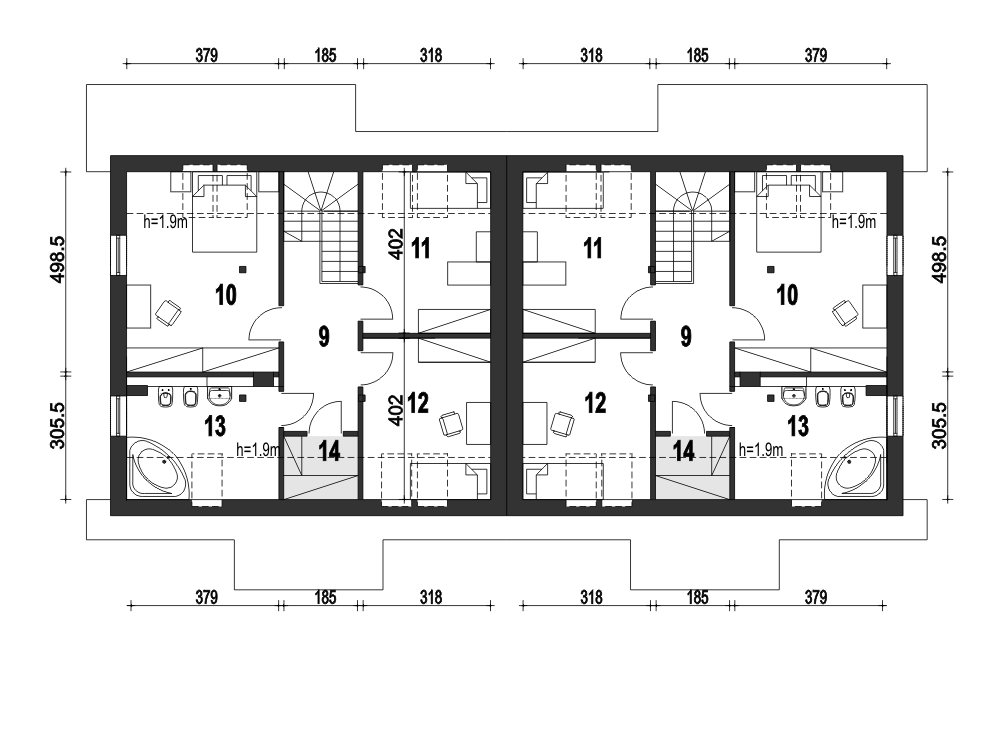
Piętro
9. hol
7,7 m2
10. sypialnia
15,8 (18,6) m2
11. sypialnia
9,9 (13,2) m2
12. sypialnia
10,2 (11,6) m2
13. łazienka
8,3 (10,1) m2
14. strych (garderoba)*
1,5 (2,8) m2

Sytuacja

O autorze projektu Gajówka B-BL1

8 902 zł

Tylko u nas możesz negocjować cenę!
Skorzystaj z tej możliwości.

Lustrzane odbicie: dostępne.

Masz dodatkowe pytania?
Zadzwoń lub zamów rozmowę.

Zamów rozmowę

Pomożemy Ci dopasować do twoich potrzeb mymarzony projekt, wpisz swój numer telefonu nasz konsultant oddzwoni.

Negocjuj cenę projektu Gajówka B-BL1

Wersja projektu:

Zapytaj pytanie o projekt Gajówka B-BL1

Wersja projektu:

Oceny i komentarze

Napisz swoją opinię