- Tylko online
Masz pytania? Chciałbyś negocjować cenę
Zadzwoń! 577 575 011
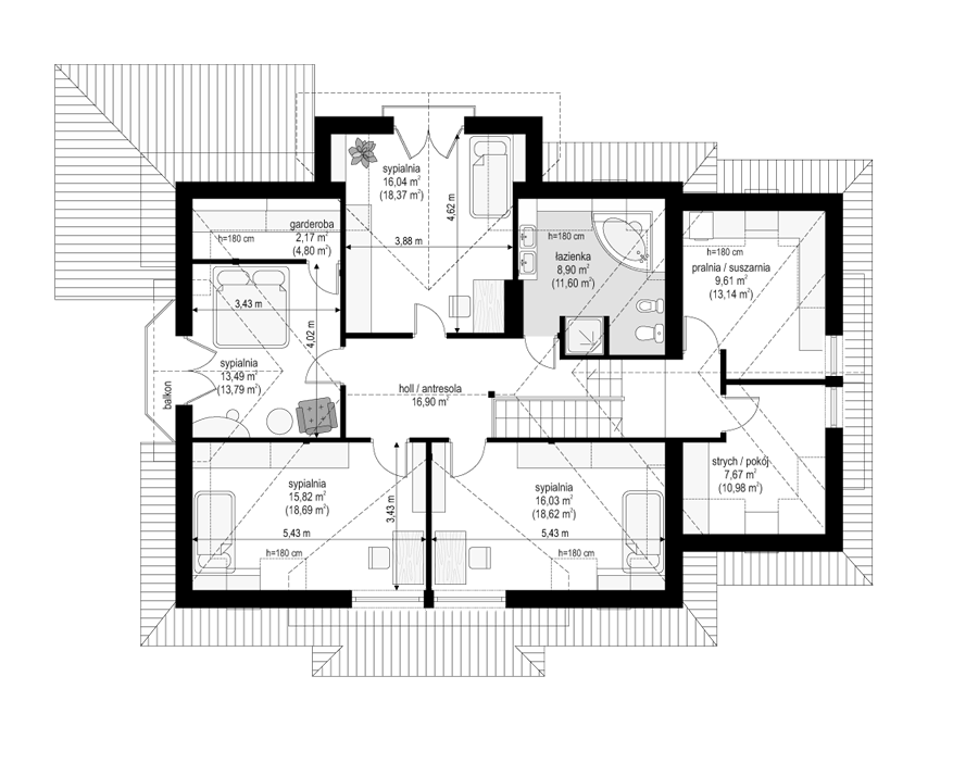
Projekt domu Rubin 3 to wariantowa wersja popularnego projektu Rubin. W stosunku do wersji podstawowej projektu dom Rubin 3 jest pomniejszony, ma jednostanowiskowy garaż oraz zabudowaną pustką nad pokojem dziennym na poddaszu. Dom przeznaczony jest dla 4- 5-osobowej rodziny. Parterowa bryła z poddaszem użytkowym, składa się z części mieszkalnej i dobudowanego z boku garażu. Całość budynku przekryta jest wielospadowym dachem, z dużymi lukarnami na każdej elewacji. Spokojna podmiejska architektura domu z ciekawymi detalami, jak wykusze, ganki z kolumnami, czy łukowe okna, balkony, łączy się z funkcjonalnie zaprojektowanym wnętrzem budynku. Szczególną atrakcją projektu jest duża lukarna frontowa z gankiem wejściowym i kolumnami. Od strony ogrodu zaś duży podcień, gdzie pod zadaszeniem można schronić się przed deszczem lub upalnym słońcem. Wnętrze parteru domu Rubin 3 to przede wszystkim otwarta przestrzeń dzienna, z salonem, jadalnią i holem. Na parterze zaprojektowano kuchnię oraz dodatkowy pokój, mogący służyć za gabinet lub na przykład sypialnię gościnną. Zmieściły się też pomieszczenia gospodarcze - kotłownia i garaż z zapleczem ogrodowym. Na poddaszu zaplanowano pięć pokoi sypialnych z garderobami i szafami wbudowanymi, dużą łazienkę i pralnię-suszarnię. Dom idealnie nadaje się dla dużej wielodzietnej rodziny. Pracownia MGProjekt posiada też projekt domu Rubin w odbiciu lustrzanym i inne jego wersje: podstawowy projekt domu Rubin, projekt domu Rubin 2 oraz projekt domu Rubin 3.
