- Tylko online
Masz pytania? Chciałbyś negocjować cenę
Zadzwoń! 577 575 011
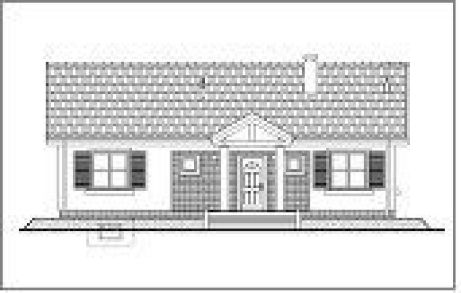
Wariant projektu w wersji z podpiwniczeniem, w piwnicy znajdują się garaż i kotłownia. Zastosowano stropy teriva.
