- Tylko online
Masz pytania? Chciałbyś negocjować cenę
Zadzwoń! 577 575 011
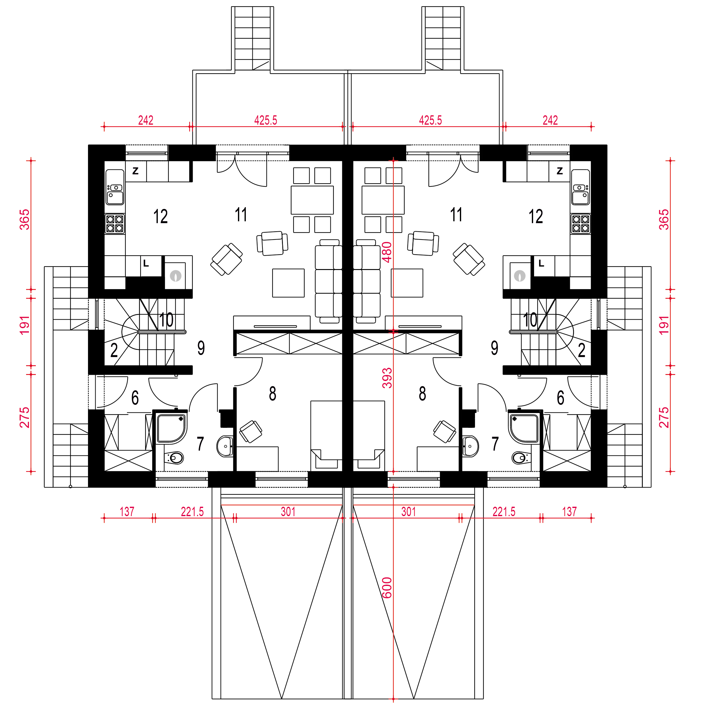
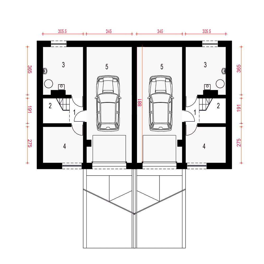
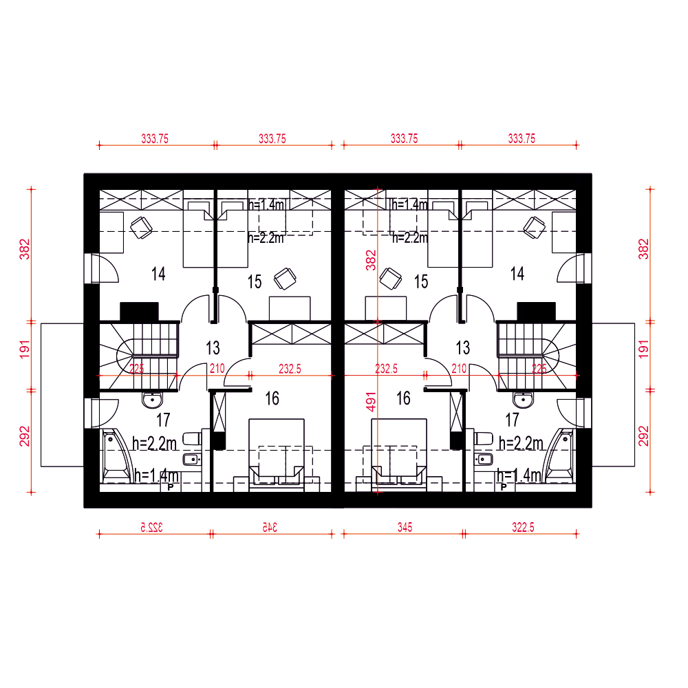
(Uwaga: projekty typu bliźniak oferujemy jako domy dwulokalowe, projekt można zamówić również w zabudowie bliźniaczej) Grab w zabudowie dwulokalowej to połączone segmenty w odbiciach lustrzanych, od strony garaży, z jedną wspólną ścianą gr 25 cm. Opis poniżej odnosi się do jednego segmentu.Grab jest propozycją niedużego domu jednorodzinnego utrzymanego w klasycznej stylistyce. Przeznaczony jest szczególnie dla wąskich działek miejskich i podmiejskich oraz do zabudowy bliźniaczej. Projekt przewiduje wbudowany garaż oraz pomieszczenia pomocnicze takie jak kotłownia oraz spiżarnia w piwnicy.Projekt przewidziano dla potrzeb 4-5 osobowej rodziny. Na parterze mamy ustawny i połączony z kuchnią i jadalnią salonu a także dodatkowy pokój, niewielką łazienkę oraz duży wiatrołap z garderobą.Na piętrze zaprojektowano trzy sypialnie oraz łazienkę. Biały kolor na elewacji zarówno w detalu jak i na płaskich powierzchniach oraz niewielki dodatek szarości podkreśla elegancki charakter budynku. Jedną z wielu zalet projektu Grab jest maksymalnie uproszczona konstrukcja oraz prosta bryła, co powoduje, że Grab będzie domem tanim w budowie i eksploatacji.fundamenty: BETONOWE ściany zewnętrzne: BLOCZKI SILIKATOWE+STYROPIAN TERMO ORGANIKA rodzaj stropu: MONOLITYCZNY elewacje: TYNK STRUKTURALNY pokrycie dachu: DACHÓWKA CEM. lub CER.
