- Tylko online
Masz pytania? Chciałbyś negocjować cenę
Zadzwoń! 577 575 011
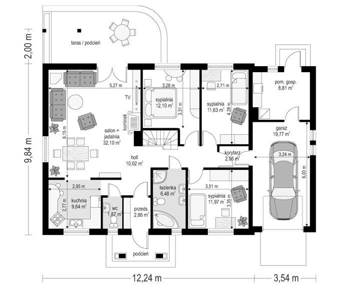
Projekt domu Cztery Kąty 2 jest wariantem projektu Cztery Kąty - tym razem z pojedynczym garażem. Propozycja domu dla mniej zmotoryzowanych, ale przede wszystkim dla inwestorów mających węższą działkę, przez co mniej miejsca na sam dom. Część mieszkalna jest identyczna jak w podstawowym projekcie, jedynie garaż uległ zmniejszeniu. Zaprojektowany został również strych nad częścią domu, który można wykorzystać jako pomieszczenie magazynowe. Projekt jest propozycją dla 4- 5-osobowej rodziny lubiącej życie na jednym poziomie, blisko ogrodu. Zapraszamy do zapoznania się z pełną ofertą pracowni MG Projekt: projekt domu Cztery Kąty w odbiciu lustrzanym oraz kilka wersji: z garażem jednostanowiskowym (projekt domu Cztery Kąty 2), z poddaszem (projekt domu Cztery Kąty 3), bez garażu (projekt domu Cztery Kąty 4).
