- Tylko online
Masz pytania? Chciałbyś negocjować cenę
Zadzwoń! 577 575 011
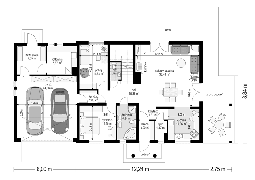
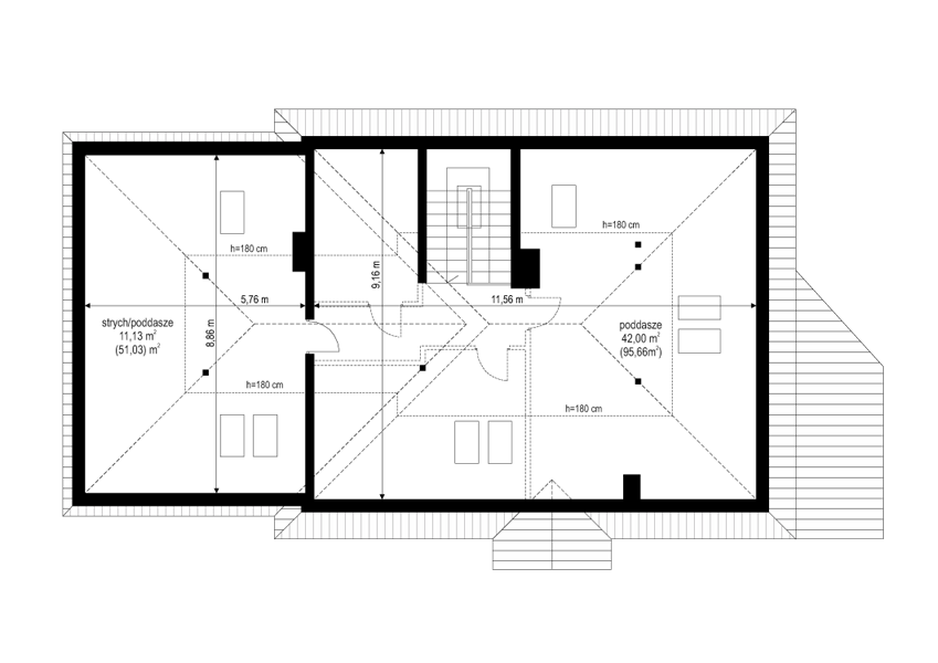
Projekt domu Cztery Kąty 3 to uroczy dom jednorodzinny, będący wariantem projektu Cztery Kąty. Tym razem projekt posiada dwustanowiskowy garaż i strych mogący być zaadaptowany na poddasze użytkowe. Dach budynku został zaprojektowany jako klasyczna krokwiowa więźba dachowa. Kąty nachylenia połaci dachowych podniesiono tak, aby na poddaszu z powodzeniem pomieściły się nawet trzy pokoje. Jednocześnie nie zrezygnowano z pokoi sypialnych na parterze tak, aby można było realizować budowę etapowo. Inwestor może zamieszkać w domu z wykończonym parterem, a strych zaadaptować w razie potrzeby. Projekt domu Cztery Kąty 3, dzięki takiemu układowi wnętrz, może również być budynkiem trzypokoleniowym - sypialnie na parterze mogą być przeznaczone dla seniorów. Zapraszamy do zapoznania się z pełną ofertą pracowni MG Projekt: projekt domu Cztery Kąty w odbiciu lustrzanym oraz kilka wersji: z garażem jednostanowiskowym (projekt domu Cztery Kąty 2), z poddaszem (projekt domu Cztery Kąty 3), bez garażu (projekt domu Cztery Kąty 4).

cudny dom, dach jest bardzo fajnie zaprojektowany. W środku pomieszczenia są przestrzenne, w dobry sposób rozłożone. W sam raz dla dużej rodziny :) dobrze, ze na AArchido mozna takie znaleźć