- Tylko online
Masz pytania? Chciałbyś negocjować cenę
Zadzwoń! 577 575 011
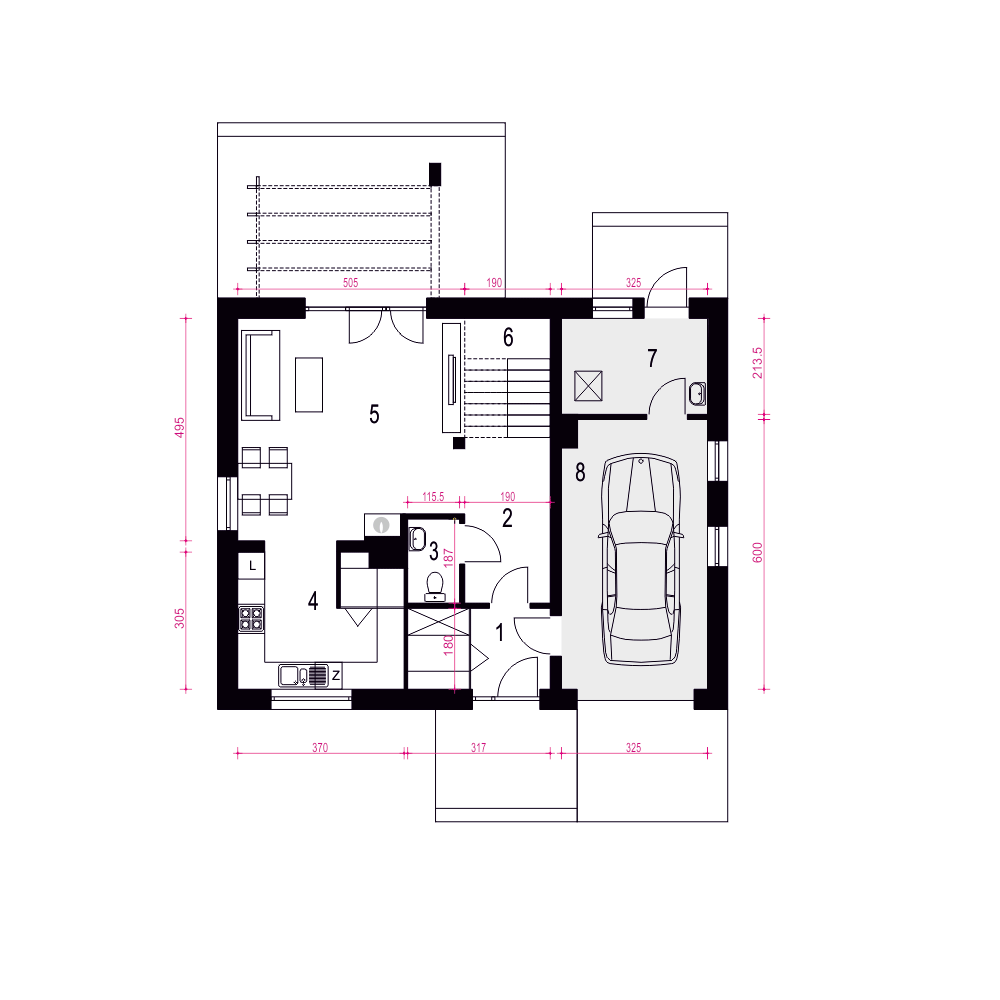
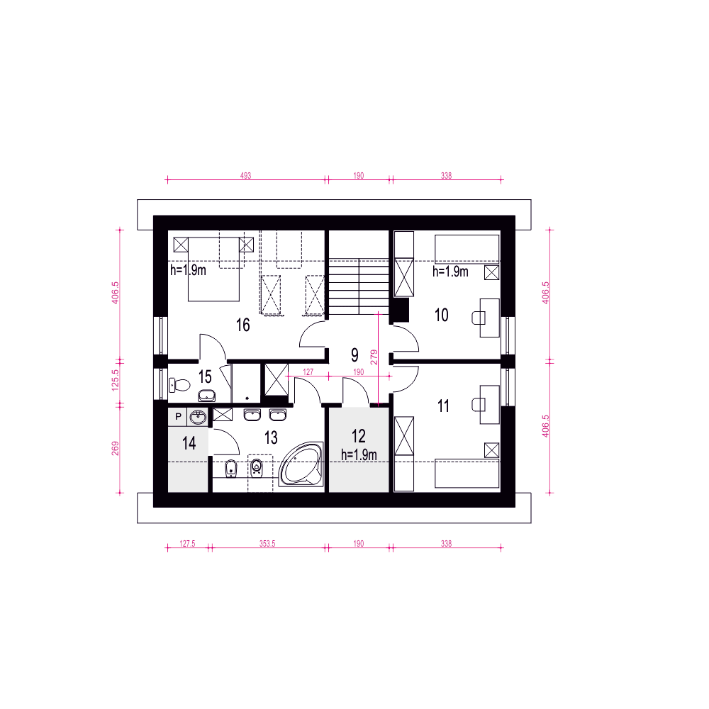
Igor to projekt będący zoptymalizowaną propozycją przeznaczoną dla rodzin 4-osobowych. Budynek zaprojektowano tak aby był ekonomiczny w budowie i eksploatacji. Igor to prosta, zwarta bryła, dwuspadowy dach, oszczędny detal architektoniczny. Poprzez zastosowanie jętkowej konstrukcji więźby dachowej przestrzeń poddasza może zostać efektywnie wykorzystana i nie jest ograniczona słupami konstrukcyjnymi. Do budynku wchodzi się przez wiatrołap, następnie poprzez hol możemy dostać się do salonu z kuchnią i spiżarnią oraz na poddasze. Z wiatrołapu możemy dostać się także do garażu a dalej do kotłowni. Poddasze Igora to trzy wygodne sypialnie, największa z nich typu master bedroom posiada własną łazienkę oraz garderobę. Z holu mamy dostęp także do wspólnej łazienki z niedużą pralnią oraz garderoby. Elewacje Igora cechuje prostota i elegancja.fundamenty: BETONOWE ściany zewnętrzne: POROTHERM+STYROPIAN TERMO ORGANIKA rodzaj stropu: ŻELBETOWY elewacje: TYNK STRUKTURALNY pokrycie dachu: DACHÓWKA CEM. lub CER.
