Informujemy, iż nasz sklep internetowy wykorzystuje technologię plików cookies a jednocześnie nie zbiera w sposób automatyczny żadnych informacji, z wyjątkiem informacji zawartych w tych plikach (tzw. „ciasteczkach”).

Igor A-BL

Lustrzane odbicie
  • Tylko online

Dane techniczne

powierzchnia
218.4 m²
wysokość
9.1 m
kąt dachu
45 °
szerokość działki
30.4 m
Liczba pokoi
8
Powierzchnia zabudowy
205.5
kondygnacje
z poddaszem użytkowym
garaż
z garażem 1 st.
dach
dach dwuspadowy
konstrukcja
murowane
zabudowa
domy bliźniacze
piwnica
bez piwnicy
dostępne odbicie lustrzane
Tak
Pow. użytkowa
218.4 m²
długość działki
17.2 m
Liczba łazienek
4
Powierzchnia dachu
337.2 m²

Opis projektu

(Uwaga: projekty typu bliźniak oferujemy jako domy dwulokalowe, projekt można zamówić również w zabudowie bliźniaczej)

Rzuty

Parter
1. wiatrołap
5,6 m2
2. hol
7,9 m2
3. wc
2,1 m2
4. kuchnia, spiżarnia
11,1 m2
5. salon
23,8 m2
6. schody
4,9 m2
7. pom. techniczne z co*
6,8 m2
8. garaż*
19,0 m2
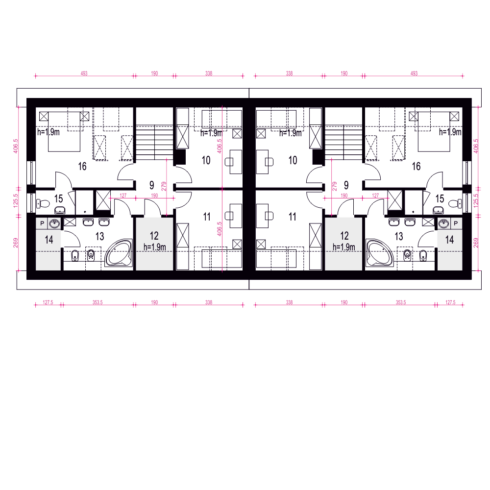
Piętro
9. hol
7,5 m2
10. pokój
10,3 (13,1) m2
11. pokój
10,6 (13,5) m2
12. strych*
3,4 (5,0) m2
13. łazienka
6,3 (9,3) m2
14. pralnia*
2,2 (3,3) m2
15. łazienka
3,5 m2
16. pokój
15,6 (19,8) m2

Sytuacja

Przekrój

O autorze projektu Igor A-BL

8 902 zł

Tylko u nas możesz negocjować cenę!
Skorzystaj z tej możliwości.

Lustrzane odbicie: dostępne.

Masz dodatkowe pytania?
Zadzwoń lub zamów rozmowę.

Zamów rozmowę

Pomożemy Ci dopasować do twoich potrzeb mymarzony projekt, wpisz swój numer telefonu nasz konsultant oddzwoni.

Negocjuj cenę projektu Igor A-BL

Wersja projektu:

Zapytaj pytanie o projekt Igor A-BL

Wersja projektu:

Oceny i komentarze

Napisz swoją opinię