Informujemy, iż nasz sklep internetowy wykorzystuje technologię plików cookies a jednocześnie nie zbiera w sposób automatyczny żadnych informacji, z wyjątkiem informacji zawartych w tych plikach (tzw. „ciasteczkach”).

Igor A1-BL

Lustrzane odbicie
  • Tylko online

Dane techniczne

powierzchnia
218.4 m²
wysokość
9.1 m
kąt dachu
45 °
szerokość działki
30.1 m
Liczba pokoi
8
Powierzchnia zabudowy
202.7
kondygnacje
z poddaszem użytkowym
garaż
z garażem 1 st.
dach
dach dwuspadowy
konstrukcja
murowane
zabudowa
domy bliźniacze
piwnica
bez piwnicy
dostępne odbicie lustrzane
Tak
Pow. użytkowa
218.4 m²
długość działki
17.2 m
Liczba łazienek
4
Powierzchnia dachu
331 m²

Opis projektu

(Uwaga: projekty typu bliźniak oferujemy jako domy dwulokalowe, projekt można zamówić również w zabudowie bliźniaczej)fundamenty: BETONOWE ściany zewnętrzne: BLOCZKI SILIKATOWE+STYROPIAN TERMO ORGANIKA rodzaj stropu: MONOLITYCZNY elewacje: TYNK STRUKTURALNY pokrycie dachu: DACHÓWKA CEM. lub CER.

Rzuty

Parter
1. wiatrołap
5,6 m2
2. hol
7,9 m2
3. wc
2,1 m2
4. kuchnia, spiżarnia
11,1 m2
5. salon
23,8 m2
6. schody
4,9 m2
7. pom. techniczne z co*
6,8 m2
8. garaż*
19,0 m2
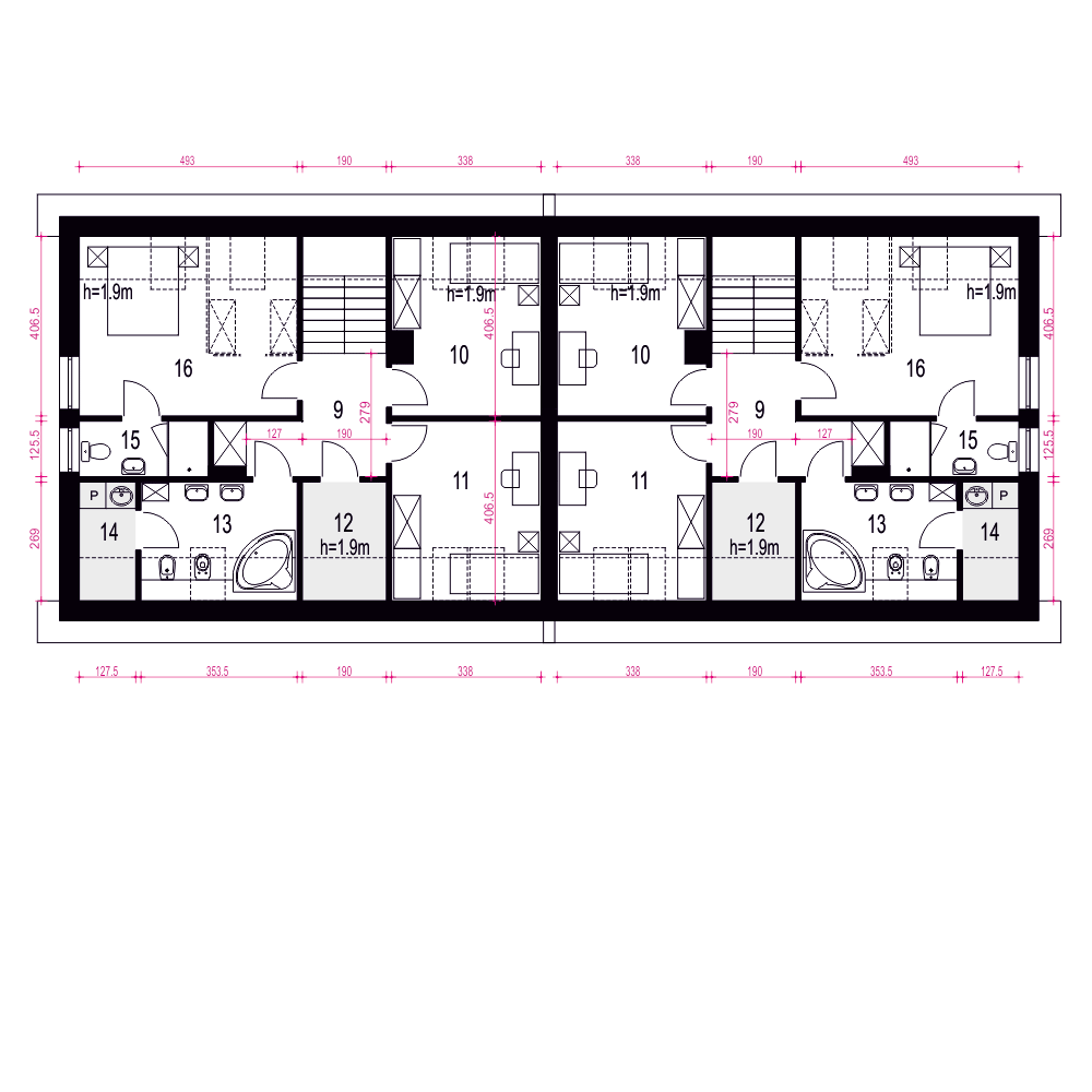
Piętro
9. hol
7,5 m2
10. pokój
10,3 (13,1) m2
11. pokój
10,6 (13,5) m2
12. strych*
3,4 (5,0) m2
13. łazienka
6,3 (9,3) m2
14. pralnia*
2,2 (3,3) m2
15. łazienka
3,5 m2
16. pokój
15,6 (19,8) m2

Sytuacja

Przekrój

O autorze projektu Igor A1-BL

8 902 zł

Tylko u nas możesz negocjować cenę!
Skorzystaj z tej możliwości.

Lustrzane odbicie: dostępne.

Masz dodatkowe pytania?
Zadzwoń lub zamów rozmowę.

Zamów rozmowę

Pomożemy Ci dopasować do twoich potrzeb mymarzony projekt, wpisz swój numer telefonu nasz konsultant oddzwoni.

Negocjuj cenę projektu Igor A1-BL

Wersja projektu:

Zapytaj pytanie o projekt Igor A1-BL

Wersja projektu:

Oceny i komentarze

Napisz swoją opinię