- Tylko online
Masz pytania? Chciałbyś negocjować cenę
Zadzwoń! 577 575 011
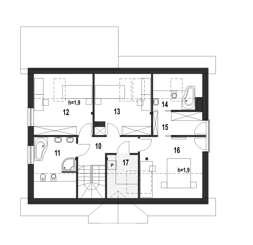
Inka III to większa wersja Inki II.fundamenty: BETONOWE ściany zewnętrzne: POROTHERM+STYROPIAN TERMO ORGANIKA ściany wewnętrzne: POROTHERM, GK rodzaj stropu: TERIVA elewacje: TYNK STRUKTURALNY, OKŁ.KLINKIEROWA pokrycie dachu: DACHÓWKA CEM. lub CER.
