- Tylko online
Masz pytania? Chciałbyś negocjować cenę
Zadzwoń! 577 575 011
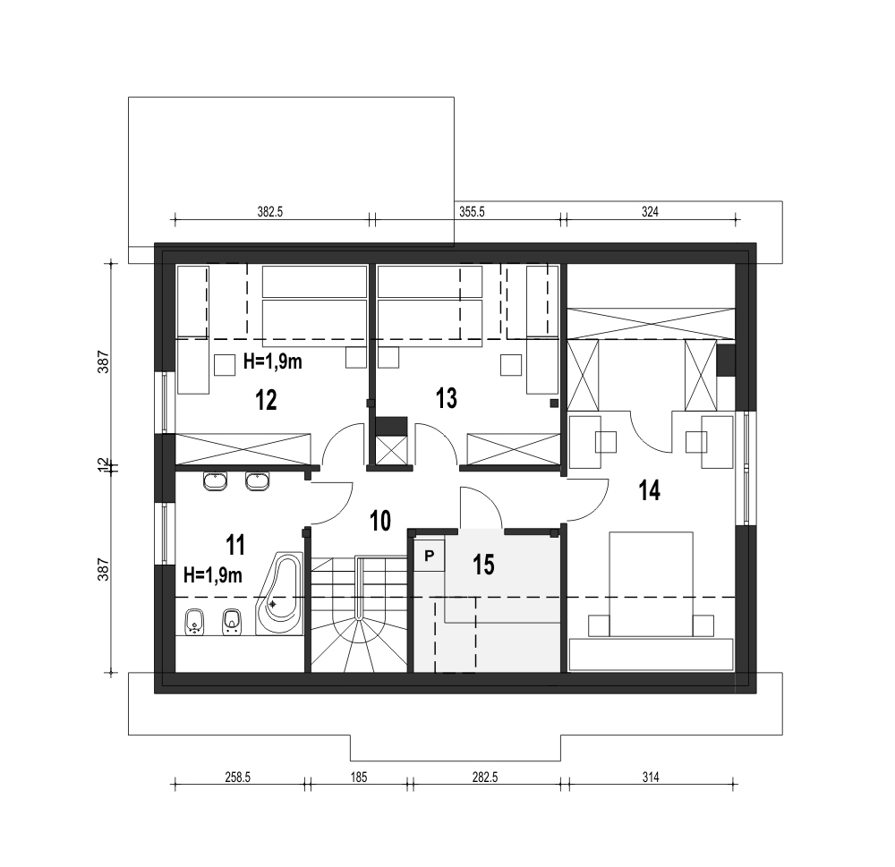
Projekt Inka IV powstał w oparciu o popularny dom Inka II.fundamenty: BETONOWE ściany zewnętrzne: POROTHERM+STYROPIAN TERMO ORGANIKA ściany wewnętrzne: POROTHERM, GK rodzaj stropu: TERIVA elewacje: TYNK STRUKTURALNY, OKŁ.KLINKIEROWA pokrycie dachu: DACHÓWKA CEM. lub CER.
Cenię sobie otwarte przestrzenie takie jak tutaj w salnie z jadalnią i otwarta kuchnią. Przydana będzie też spiżarnia, bo jednak zawszez rakuje miejsca żeby dgzies trzyac jedzenie jeśli cos się nie nadaje do choanie do lodówki, generalnie Inka IV jak dla mnie jest proopzycją strzeloną w 10 i pod względem wyglądu elewacji i tez jeślic hdozi o rozkąłd pomieszczeń i cąłu ukłąd wewnątrz. Swietnie!

Cenię sobie otwarte przestrzenie takie jak tutaj w salnie z jadalnią i otwarta kuchnią. Przydana będzie też spiżarnia, bo jednak zawszez rakuje miejsca żeby dgzies trzyac jedzenie jeśli cos się nie nadaje do choanie do lodówki, generalnie Inka IV jak dla mnie jest proopzycją strzeloną w 10 i pod względem wyglądu elewacji i tez jeślic hdozi o rozkąłd pomieszczeń i cąłu ukłąd wewnątrz. Swietnie!