- Tylko online
Masz pytania? Chciałbyś negocjować cenę
Zadzwoń! 577 575 011
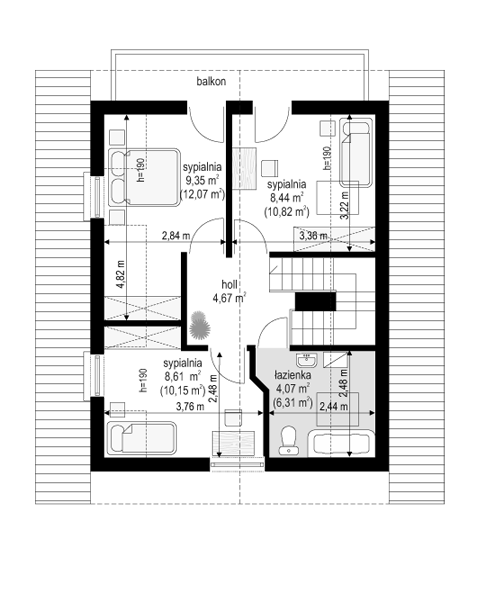
Projekt domu D03 to budynek jednorodzinny z użytkowym poddaszem. Domek parterowy zaprojektowany z myślą o 3- 4-osobowej rodzinie. Mimo niedużej powierzchni dom doskonale spełnia wymagania. Dzięki funkcjonalnemu rozplanowaniu jest bardzo wygodny. W projekcie D03 zaplanowano część dzienną na parterze. Na poddaszu mieszczą się trzy sypialnie. Pracownia dysponuje także innymi wersjami wariantowymi domu D03, jak również odbiciem lustrzanym projektu. Zapraszamy do zapoznania się z pełną ofertą pracowni MG Projekt: D03 Grześ drewniany, D03 z garażem.
